Fax: 01494 523392
1 Crendon Street
High Wycombe
Buckinghamshire
HP13 6LE
************ Building plot / Extension potential ************
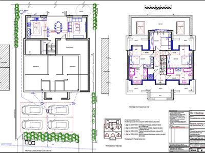
Hurst are delighted to bring to market this exciting opportunity for anyone that is looking to build their own home or that would just be interested in extending the current bungalow that currently sits on this plot. Plans have been drawn up and permission passed (see plans in images) for a substantial family home to be built in this popular location on the outskirts of the town / Penn & Tyler's Green, that sits on a large plot, providing fantastic views across adjacent fields / Valley and comes with a South-West facing rear garden. There have been a number of properties in the road that have undergone similar changes and an array of new builds in recent years that have sold for prices in the region of 1.1m - 1.3m. Situated to the East of High Wycombe's town centre and close to Popular villages, this site provides the new owner with a perfect blend of rural living and convenient access to transport networks that include junction 3 of the M40, Beaconsfield & High Wycombe train stations of which the latter provides a direct line into London Marylebone. This really is an exciting opportunity that comes with no onward chain and an early viewing is highly recommended.
Although these particulars are thought to be materially correct their accuracy cannot be guaranteed and they do not form part of any contract.
Property data and search facilities supplied by www.vebra.com