82 Blackdyke Road
Kingstown Industrial Estate
Carlisle
Cumbria
CA3 0PJ
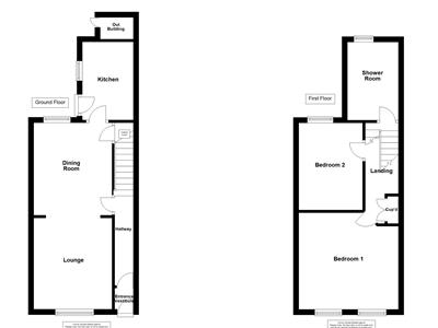
Vicinity Homes are delighted to offer to the market this immaculately presented, two double bedroom, two reception room, mid terrace house situated within a popular residential area to the South of Carlisle City Centre. The property is close to a range of local amenities, regular bus route, popular Primary & Secondary Schools and has excellent access to the City Centre. The accommodation briefly comprises of an entrance vestibule, hallway, open plan lounge & dining room and a modern kitchen. To the first floor there are two double bedrooms and a spacious shower room. The property also benefits from double glazing, central heating, front forecourt and a rear enclosed yard with an out building. Viewing is absolutely essential to fully appreciate the accommodation on offer. An ideal purchase for first time buyers or a family. The property is offered to the market with no onward chain.
Proceed South along Currock Road. Turn right onto South Western Terrace. The property is situated on the left hand side and can be identified by our "For Sale" sign.
Approached by a door to front, incorporating coving to the ceiling.
Incorporating a radiator, vinyl flooring, coving to the ceiling and stairs to the first floor.
3.768m x 3.341m (12'4" x 10'11")Incorporating a double glazed window to front, radiator, coving to the ceiling and a feature fireplace with an open fire.
4.460m x 3.542m (14'7" x 11'7")Incorporating a double glazed bow window to rear, radiator, coving to the ceiling and under stairs storage cupboard.
4.650m x 2.377m (15'3" x 7'9")Incorporating a range of modern fitted wall and base units with complementary work surface over, integrated oven and integrated hob with cooker hood over. Sink unit with mixer tap, plumbing for a washing machine, space for a tumble dryer and space for a fridge/freezer. Double glazed window to side, vinyl flooring, inset ceiling lights and door to side.
Incorporating two built in storage cupboards, loft access and skylight.
4.599m x 3.780m max x 3.228m min (15'1" x 12'4" maA double bedroom incorporating two double glazed windows to front, radiator and coving to the ceiling.
4.416m x 2.530m (14'5" x 8'3")A double bedroom incorporating a double glazed window to rear and a radiator.
4.642m x 2.336m (15'2" x 7'7")Incorporating a three piece suite comprising of a double shower cubicle, pedestal wash hand basin and WC. Double glazed obscured window to rear, radiator, feature fireplace, vinyl flooring, loft access, tiled splash areas and extractor fan.
The property is approached by a front forecourt. To the rear of the property there is a good sized enclosed yard with an out building, patio seating areas, outside tap, raised flower & shrub beds and gated access to rear.
2.033m x 1.880m (6'8" x 6'2")For storage.
Please note, the floor plan is not to scale and should be used for illustrative purposes only.
https://find-energy-certificate.service.gov.uk/energy-certificate/0548-2860-6617-9391-8675
The property is Freehold.
The property is in Council Tax Band A.
Strictly through arranged appointments by Vicinity Homes. To arrange a viewing, please contact: T: 01228 599011 or E: sales@vicinityhomes.co.uk.
We routinely refer potential purchasers to Mortgage Advisers - Fisher Financial Associates. It is your decision whether you choose to deal with Fisher Financial Associates. In making that decision, you should know that we will receive commission from the company worth approximately £50 depending on any business written.
Referral Fees - Vicinity Homes work with preferred conveyancers for a house sale or purchase. You are under no obligation to use their services. Should you choose to use them, Vicinity Homes Estate Agents will receive a referral fee of between £120.00 to £150.00 on completion of a sale or purchase.
These particulars, whilst believed to be accurate, are set out for guidance only and do not constitute any part of an offer or contract - intending purchasers should not rely on them as statements or representations of fact, but must satisfy themselves by inspection or otherwise as to their accuracy. All electrical appliances mentioned in these details have not been tested and therefore cannot be guaranteed to be in working order.
To register your buying information and receive updates on all our available properties, please contact Vicinity Homes on 01228 599011 or via email to sales@vicinityhomes.co.uk.
We would be pleased to provide you with a free, no obligation valuation for your home. Please contact Vicinity Homes on 01228 599011 or via email to sales@vicinityhomes.co.uk to arrange an appointment.
Although these particulars are thought to be materially correct their accuracy cannot be guaranteed and they do not form part of any contract.
Property data and search facilities supplied by www.vebra.com