20 High Street
Whitton
Twickenham
TW2 7LT
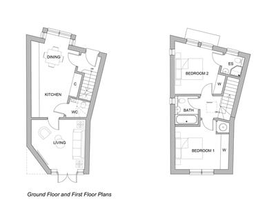
Freehold commercial building with planning permission granted to demolish the existing building and develop a 2 bedroom detached house extending to 839 sqft.
The property benefits with all mains services and drainage on site already, with a well maintained rear garden and out-house to the rear.
The property is located in a fantastic location, within walking distance to local amenities and Hampton Overground Train Station.
GIA - 839 SQFT approx
CIL - £40,000
All mains services currently on site scl-land
Although these particulars are thought to be materially correct their accuracy cannot be guaranteed and they do not form part of any contract.
Property data and search facilities supplied by www.vebra.com