2 Quaypoint
Station Road
Woodbridge
Suffolk
IP12 4AL
An excellent opportunity to purchase a freehold house currently converted into four apartments, let out until May 2026 on an AST, generating a gross income of approximately £38,160 per year, resulting in a gross yield of 10.6%. This is a well-managed investment property that has been continuously rented for 25 years being sold due to the owners retirement.
This is an excellent opportunity to purchase a well-managed investment property that has been continuously rented for 25 years. The property consists of four apartments currently let out on AST's until the end of May 2026, generating a gross income of £38,160 per year, resulting in a gross yield of 10.6%.
The property features accommodation spread over three floors: the ground floor consists of a one bedroom flat with a living room/kitchen and bathroom. A studio apartment with living room/bedroom, a kitchen and bathroom. The first floor has a one bedroom flat with kitchen, living room and bathroom. The second floor contains a further one bedroom flat, with a living room kitchen and bathroom. There is also three off street parking spaces to the rear accessed from Fairfax Road.
The property is conveniently and centrally located near the city centre of Colchester, where you can find a variety of shops, restaurants, and numerous amenities. It is also close to the City centre railway station with links to Colchester North station, which provides a fast and frequent service to Chelmsford (17 minutes) and London, taking approximately 47 minutes. The University is also easily accessible via the bus (from the city centre bus station in Osborne Street to the University, taking about 22 minutes) alternatively the Colchester Institute on Sheepen Road is in easy reach.
4.70m x 3.23m (15'5 x 10'7)Window to front.
3.40m x 2.77m (11'2 x 9'1)Window to side.
Panelled bath, wash basin and wc
2.46m x 2.08m (8'1 x 6'10)Window to side
4.65m x 2.62m (15'3 x 8'7)Window to front
2.41m x 2.64m (7'11 x 8'8)Window to side, panelled bath, wash basin and wc.
Doors to bedroom and living room
3.45m x 3.28m (11'4 x 10'9)Window to front.
2.59m x 1.93m (8'6 x 6'4)Window to side
Window to side, panelled bath, wash basin and wc
4.62m x 3.40m (15'2 x 11'2)Window to side
Doors to Lounge, bedroom and bathroom.
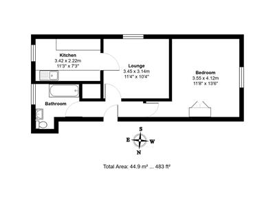
3.45m x 3.15m (11'4 x 10'4)Window to front.
4.11m x 3.56m (13'6 x 11'8)Window to side
3.43m x 2.21m (11'3 x 7'3)Window to side
Window to side, panelled bath, wash basin and wc.
To the rear of the property there is a small storage area with three parking bays accessed from Fairfax Road.
Services: Mains water, electricity, gas and drainage are connected to the property. Each flat has its own gas boiler providing central heating.
Tenure: Freehold
Local Authority: Colchester City Council
Council Tax: Flat 1 A, Flat 2 A, Flat 3 A. Flat 4 A
EPC: Flat 1, Band C, Flat 2, Band D, Flat 3, Band C, Flat 4, Band C.
Available to purchase as a furnished tenanted property.
Although these particulars are thought to be materially correct their accuracy cannot be guaranteed and they do not form part of any contract.
Property data and search facilities supplied by www.vebra.com