4 Glumangate
Chesterfield
Derbyshire
S40 1QA
* DETACHED FAMILY HOME * 4 BEDROOMS * PLANNNG CONSENT FOR FURTHER DETACHED PROPERTY INCLUDED WITHIN THE SALE * FOUR GENEROUS BEDROOMS * ENSUITE SHOWER ROOM/W.C. * FAMILY BATHROOM WITH FOUR PIECE SUITE * ONE RECEPTION ROOM * FAMILY DINING KITCHEN * UTILITY ROOM * GROUND FLOOR W.C. * GAS CENTRAL HEATING * DOUBLE GLAZING *
Accessed via a long, private driveway, Glen Vine offers an extremely spacious living space with accommodation positioned over two floors. The ground floor is accessed via a useful double glazed entrance porch/conservatory which leads through to a spacious entrance hall with stairs to first floor accommodation. There is one reception room which enjoys a front aspect connecting to the fourth bedroom/family room. The dining kitchen boasts a comprehensive range of fitted wall and base cupboard units, appliances and a log burning stove fitted to the dining area along with a utility room and ground floor cloakroom and w.c. To the first floor there are three generously proportioned bedrooms, the master bedroom having the benefit of an ensuite shower room/w.c and there is also a family bathroom with four piece white suite.
Gardens are a particular delight and are positioned to front, side and rear elevations. The driveway provides ample off street parking and leads to the detached brick built garage.
The property also benefits from gas fired central heating and double glazing.
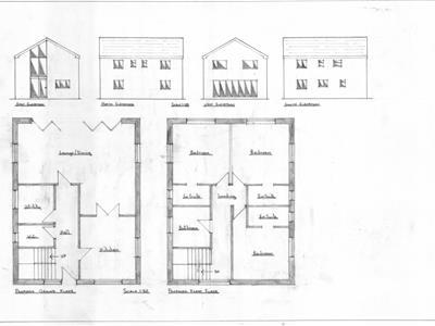
Included within the sale of the property there is also full planning consent for the erection of a three bedroomed detached family home adjacent to Glen Vine with an additional garage. Further details are available on the Bolsover District Council planning portal or one of our team members would be happy to assist further.
Being of brick and double glazed timber construction, a useful porch with tiled flooring and door leading through to:
With entrance door to porch, stairs to first floor accommodation and radiator.
5.27m x 3.94m (17'3" x 12'11")An exceptionally good sized principal reception room which enjoys views over the front garden through a double glazed bow window, feauture fire surround with inset coal-effect electric fire. Also having radiator and archway leading through to:
5.09m x 3.63m (16'8" x 11'10")Another good sized reception room which enjoys a multi-aspect with double glazed sliding patio doors leading to front elevation along with two further double glazed windows to the side. Also having archway leading back through to the living room and radiator.
A fabulous room which enjoys a rear aspect and has designated kitchen and dining areas as follows:
4.61m x 2.70m (15'1" x 8'10")Having been comprehensively fitted with a range of wall and base cupboard units with worksurfaces over and inset single drainer sink unit with mixer tap over. Also having integrated appliances to include double electric oven, gas hob with concealed extractor canopy over and dishwasher. Also having ceramic tiled splashbacks, laminate flooring, double glazed windows to side and rear elevations and radiator.
3.08m x 2.70m (10'1" x 8'10")Enjoying views of the garden through a double glazed window to rear and having continuation of the laminate flooring, dado rail, fitted cast-iron log burning stove, radiator and door to:
3.66m x 1.20m (12'0" x 3'11")With double base cupboard unit having single drainer sink unit with mixer tap over. Also having space and plumbing for washing machine and tumble dryer, dado rail, double glazed window to rear elevation, continuation of the laminate flooring, double glazed door leading to rear garden and further door giving access to:
Having a white suite comprising low flush w.c. and wash hand basin, continuation of the laminate flooring and window to rear.
With double glazed window to side elevation and doors leading to:
3.95m x 3.65m (12'11" x 11'11")A good sized master bedroom which enjoys an abundance of natural light through a double glazed picture window to front elevation. Also having a range of fitted bedroom furniture to include drawer units, bedside units and wardrobes. Also having ceiling spotlights, radiator and door to:
2.72m x 1.52m (8'11" x 4'11")Having been fitted with a white suite comprising walk-in shower enclosure with fitted shower and glazed door, low flush w.c. with concealed cistern and adjoining vanity unit with inset wash basin with mixer tap over and storage below. Also having partial ceramic wall tiling, laminate flooring, double glazed window to front elevation and radiator.
4.61m x 2.69m (15'1" x 8'9")Another good sized bedroom with double glazed window enjoying views over the rear garden and radiator.
3.10m x 2.71m (10'2" x 8'10")Another double bedroom, again enjoying a rear aspect with double glazed window and radiator.
2.72m x 2.00m (8'11" x 6'6" )Having been fitted with a four piece white suite comprising panelled bath, separate shower enclosure with fitted shower and glazed door, pedestal wash basin, low flush w.c., laminate flooring, partial ceramic wall tiling, double glazed window, useful overstairs storage cupboard and heated towel rail.
The gardens to the property are a particular delight and enjoy a mix of lawn, patio and bordered areas to the front, side and rear elevations. Borders contain a variety of mature plants, trees and shrubs and a fitted pergola to the rear patio area enjoys climbing wisteria. Boundaries are clearly defined with a mix of wall, hedgerow and timber fencing and a driveway provides ample off street vehicular standing and leads to the garage detailed below.
5.8m x 5.29m (19'0" x 17'4")A larger than average single brick built garage which has up and over door, light and power. There is also an additional personnel door to front elevation.
Full conditional planning consent was granted on the 17th February 2023 for the erection of a 3 BEDROOMED DETACHED DWELLING in the grounds of Glen Vine.
Planning documents are included within this brochure but the full application can be viewed on the Bolsover District Council Planning Portal under the Application No: 22/00621/FUL
Strictly through the selling agents on 01246 232156 / residential@wtparker.com
We can also be whatsapped on 07935 557082
Band C
Band D
Bolsover District Council
Although these particulars are thought to be materially correct their accuracy cannot be guaranteed and they do not form part of any contract.
Property data and search facilities supplied by www.vebra.com