91 - 93 The Ridgeway
Plympton
PL7 2AA
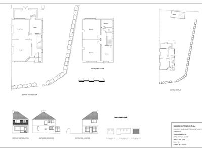
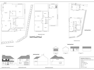
Situated in the popular Woodford area, with a primary & junior school & a park within easy walking distance, this property is being offered with no onward chain. The current layout includes an entrance porch & hall, lounge, dining room, kitchen & conservatory together with 3 double bedrooms, a bathroom & separate wc. Outside, to the front there is a garage & driveway providing off-road parking for one vehicle & a generous wrap-around garden. Positioned on a corner plot, the property has planning permission for multiple extensions providing an excellent opportunity for development into a substantial family home. Planning Reference: 25/00497/FUL
uPVC double-glazed door, with inset decorative glass panel, opening into the entrance porch.
2.20 x 0.83 (7'2" x 2'8")Wooden door, with inset obscured glass panels, opening into the entrance hallway. uPVC double-glazed window to the front elevation.
4.27 x 1.80 (14'0" x 5'10")Door leading to the living room. Sliding doors leading to the dining room and kitchen. Stairs ascending to the first floor with storage cupboards beneath. uPVC double-glazed window to the side elevation.
4.16 x 3.90 max (13'7" x 12'9" max)Gas fireplace with a tiled hearth and surround (disconnected). uPVC double-glazed bay window to the front elevation. Open plan access into the dining room.
3.86 x 3.35 max (12'7" x 10'11" max)uPVC double-glazed window looking into the conservatory.
2.81 x 2.26 (9'2" x 7'4")Range of matching base and wall-mounted units incorporating a roll-edged laminate worktop with a stainless-steel sink unit. Spaces for an oven and washing machine. uPVC double-glazed window to the side elevation. Wooden door, with inset glass panels, leading into the conservatory.
4.59 x 1.81 (15'0" x 5'11")uPVC double-glazed windows to the side elevations. uPVC double-glazed double doors leading to the rear garden.
3.37 x 0.81 (11'0" x 2'7")Doors providing access to the first floor accommodation. uPVC double-glazed window to the side elevation. Access hatch, with pull-down ladder, to boarded loft with lighting.
4.18 x 3.50 max (13'8" x 11'5" max)Built-in wardrobe. uPVC double-glazed window to the front elevation.
3.87 x 3.52 max (12'8" x 11'6" max)Built-in wardrobe. uPVC double-glazed window to the rear elevation.
3.05 x 2.12 (10'0" x 6'11")Wall-mounted combi-boiler. uPVC double-glazed window to the rear elevation.
2.11 x 1.49 (6'11" x 4'10")Panelled bath with electric shower over and glass shower screen and pedestal wash handbasin. Obscured uPVC double-glazed window to the side elevation.
1.19 x 0.81 (3'10" x 2'7")Close-coupled wc. Obscured uPVC double-glazed window to the side elevation.
The property is approached via a metal gate into the front garden, which is laid to stone chippings, bordered by mature hedging. A brick path leads to the front door and continues around the side of the property. A wooden gate opens to the side garden which is also laid to stone chippings. A further wooden gate leads to the rear garden. The rear garden is a generous, westerly-facing garden which wraps around to the side. It is fully-enclosed by a fence, a wall and mature bushes, predominantly paved, with a small area of stone chippings. Wooden, lockable bin store. Wooden gate providing access to the garage.
5.30 x 2.54 (17'4" x 8'3")The garage is accessed by car from Park Close. Manual roller door. 2 single-glazed windows to the rear elevation. 3 single-glazed windows to the side elevation.
Plymouth City Council
Council Tax Band: C
The property is connected to all the mains services: gas, electricity, water and drainage.
///bumps.thick.laptop
Although these particulars are thought to be materially correct their accuracy cannot be guaranteed and they do not form part of any contract.
Property data and search facilities supplied by www.vebra.com