9 Waterloo Street
Clifton
Bristol
Avon
BS8 4BT
Hollis Morgan – NOVEMBER LIVE ONLINE AUCTION – A Freehold DEVELOPMENT OPPORTUNITY with PLANNING GRANTED to create a mixed use scheme of 2 X FLATS | 1 X RETAIL
*** SOLD @ NOVEMBER LIVE ONLINE AUCTION ***
GUIDE PRICE £250,000 +++
SOLD @ £270,000
ADDRESS | 250 Stapleton Road, Easton, Bristol BS5 0NT
Lot Number 40
*** PLEASE NOTE NEW AUCTION START TIME - NOW 12:00 ***
The Live Online Auction is on Wednesday 19th November 2025 @ 12:00 Noon
Registration Deadline is on Friday 14th November 2025 @ 16:00
The Auction will be streamed LIVE ONLINE via the Hollis Morgan website & you can choose to bid by telephone, proxy or via your computer.
Registration is a simple online process – please visit the Hollis Morgan auction website and click “REGISTER TO BID”
A Freehold commercial property occupying a prime corner position on this popular High Street close to the City Centre.
Sold with vacant possession.
Tenure - Freehold
EPC - B
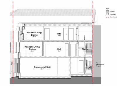
MIXED USE DEVELOPMENT OPPORTUNITY
Planning was granted ( 23/02560/F ) in February 2025 to create a mixed use scheme comprising of a self contained commercial unit with corner trading position and two self contained flats on the upper floors with independent access from Oxford Place.
Please refer to independent rental appraisal.
PROPOSED SCHEDULE OF ACCOMODATION
Ground Floor
Retail Unit | 538 Sq Ft | Kitchen | Bathroom | Corner Trading Position
Entrance to Flats
Bike & Bin Stores
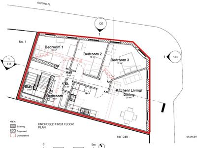
First Floor - 3 Bed Flat
Self Contained Flat | 742 Sq Ft | Open Plan Kitchen Diner Living Space | Bedroom 1 | Bedroom 2 | Bedroom 3 | Bathroom
Second Floor - 2 Bed Flat
Self Contained Flat | 678 Sq Ft | Open Plan Kitchen Diner Living Space | Bedroom 1 | En Suite | Bedroom 2 | Bathroom
Reference23/02560/F
Alternative ReferencePP-12212736
Application ReceivedTue 27 Jun 2023
Application ValidatedTue 11 Jul 2023
Address250 Stapleton Road Easton Bristol BS5 0NT
ProposalProposed redevelopment for commercial and residential purposes. The ground floor will be developed for a commercial unit and bin/bike stores, while the first and second floors will be developed as flats.
StatusDecided
DecisionGRANTED subject to condition(s)
Decision Issued DateTue 04 Feb 2025
Full details of the proposed scheme and drawings can be downloaded with the online legal pack.
First Floor - 3 Bed Flat
Self Contained Flat | 742 Sq Ft | Open Plan Kitchen Diner Living Space | Bedroom 1 | Bedroom 2 | Bedroom 3 | Bathroom
£225,000
Second Floor - 2 Bed Flat
Self Contained Flat | 678 Sq Ft | Open Plan Kitchen Diner Living Space | Bedroom 1 | En Suite | Bedroom 2 | Bathroom
£200,000
For further information on GDV and sales advice please contact the Hollis Morgan Sales Team.
What rent can we achieve for you?
The Bristol Residential Letting Co. are confident this property would make a good rental investment if brought to a standard suitable for the professional rental market. Danny Dean of The Bristol Residential Letting Co suggests a rent in the region of;
250, Stapleton Road, 3 bed flat – £1600pcm - £1700pcm | 2 bed flat - £1200pcm - £1300pcm
If you would like to discuss more detail on the potential for rental, you can call me on 07738766640 or email (danny@bristolreslet.com) for a no obligation discussion. I am always happy to advise investors on maximising their investment.
Local Commercial agents Burston Cook have advised the commercial unit would command a rent in the region of £10,000 - £12,000 per annum
Please contact Charlotte Bjoroy to discuss in more detail.
0117 934 9977
Charlotte@burstoncook.co.uk
www.burstoncook.co.uk
The property occupies a prime location on this busy and popular High Street location with independent retailers, pubs, bars, cafes, and convenience stores.
The M32 Motorway is nearby and provides direct routes in and out of Bristol and the City Centre is approximately 1.5 miles away.
Tim Adams
Adams Burrows
0117 970 2240
tim@adamsburrows.co.uk
https://www.adams-burrows.co.uk/
EXTENDED COMPLETION
Completion is set for 8 weeks or earlier subject to mutual consent.
VIEWINGS
Please submit a viewing request online and we will contact you to organise an appointment.
We will send you an email and text to confirm the appointment time and the full property address.
Viewings are supervised by a member of the Hollis Morgan Auction team who will meet you at the property.
MATERIAL INFORMATION
Information including utilities, Electricity supply, Water supply, Sewerage, Heating, Broadband, Mobile signal / coverage, Parking, Building safety, Restrictions and rights, Rights and easements, Flood risk, Erosion risk, Coastal erosion risk, Planning permission for proposal for development, Property accessibility / adaptations, Coalfield or mining area all of which will be supplied within the legal pack that can be accessed for free via the Hollis Morgan website or via your EIG account.
ONLINE LEGAL PACKS
Digital Copies of the Online legal pack can be downloaded Free of Charge.
Please visit the Hollis Morgan Website and select the chosen lot from our Current Auction List.
Press the GREEN button to "Download Legal Packs" For the first visit you will be required to register simply with your email and a password.
Having set up your account you can download legal packs or if they are not yet available, they will automatically be sent to you when we receive them.
You will be automatically updated by email if any new information is added.
There will be a note added to the list to confirm AUCTION PACK NOW COMPLETE when no further information is due to be added.
*** STAY UPDATED *** By registering for the legal pack we can ensure you are kept updated on any changes to this Lot in the build up to the sale.
BUYER’S PREMIUM
Please be aware all purchasers are subject to a £1,500 + VAT (£1,800 inc VAT) buyer's premium which is ALWAYS payable upon exchange of contracts whether the sale is concluded before, during or after the auction date.
GUIDE PRICE
An indication of the seller's current minimum acceptable price at auction. The guide price or range of guide prices is given to assist consumers in deciding whether to pursue a purchase. It is usual, but not always the case, that a provisional reserve range is agreed between the seller and the auctioneer at the start of marketing. As the reserve is not fixed at this stage and can be adjusted by the seller at any time up to the day of the auction in the light of interest shown during the marketing period, a guide price is issued. This guide price can be shown in the form of a minimum and maximum price range within which an acceptable sale price (reserve) would fall, or as a single price figure within 10% of which the minimum acceptable price (reserve) would fall. A guide price is different to a reserve price (see separate definition). Both the guide price and the reserve price can be subject to change up to and including the day of the auction.
RESERVE PRICE
The seller's minimum acceptable price at auction and the figure below which the auctioneer cannot sell. The reserve price is not disclosed and remains confidential between the seller and the auctioneer. Both the guide price and the reserve price can be subject to change up to and including the day of the auction.
PRE AUCTION OFFERS
Some vendors are willing to consider offers prior to the auction.
Pre auction offers can ONLY be submitted by completing the online PRE AUCTION OFFER FORM
The form can be found on the Hollis Morgan website on the individual auction property listing.
Please note offers will not be considered until you have inspected the COMPLETE LEGAL PACK once it has been released.
There will be a note added to the list to confirm AUCTION PACK NOW COMPLETE when our client’s solicitor informs us no further information is due to be added.
In the event of an offer being accepted the property will only be removed from the online auction and viewings stopped once contracts have successfully EXCHANGED subject to the standard auction terms and payment of the buyer’s premium (£1,800 Inclusive of VAT) to Hollis Morgan.
Contracts can be exchanged via the solicitors or at the Hollis Morgan offices by appointment only.
REGISTRATION PROCESS
The registration process is extremely simple – visit the Hollis Morgan auction website and click on the “Register to Bid” button.
The “Register to Bid” button can be found on the auction home page or on the individual lot listings.
Please note this function is not available on Rightmove or Zoopla.
Stage 1 – Complete the Online Bidding Form
Stage 2 – Upload your certified ID
Stage 3 – Invitation to bid
Stage 4 – Pay your security deposit (£6,800)
You are now ready to bid – Good luck!
If your bid is successful, the balance of the deposit monies must be transferred to our client account within 24 hours of the auction sale.
If you are unsuccessful at the auction your holding deposit will be returned within 48 hours.
SURVEYS AND VALUATIONS
If you would like to arrange a survey or mortgage valuation of this Lot BEFORE the auction, please instruct your appointed surveyor to contact Hollis Morgan and we will arrange access for them to inspect the property. Please note that buyers CANNOT attend the surveys and the surveyors are responsible for collecting and returning keys to the Hollis Morgan offices in Clifton.
AUCTION FINANCE & BRIDGING LOANS
Some properties may require specialist auction finance- please contact Hollis Morgan for access to expert advice and whole of market rates from our independent brokers.
Hollis Morgan may receive introductory fees for this service from the broker.
AUCTION BUYER’S GUIDE VIDEO
We have short video guides for both buying and selling by Public Auction on the Hollis Morgan Website. If you have any further questions regarding the process, please don’t hesitate to contact Auction HQ.
2025 CHARITY OF THE YEAR
Hollis Morgan is supporting Uncle Pauls Chilli Charity empowering socially disadvantaged people with barriers to learning &/or disabilities based in Butcombe, North Somerset, our land overlooks the Mendip Hills and Blagdon lake. There are three main areas of focus at Uncle Paul’s Chilli Charity Education, Wellbeing and Social Prescribing – visit www.chillicharity.org.uk/ for more details or the Hollis Morgan Charity Page of our website.
AUCTION PROPERTY DETAILS DISCLAIMER
Hollis Morgan endeavour to make our sales details clear, accurate and reliable in line with the Consumer Protection from Unfair Trading Regulations 2008 but they should not be relied on as statements or representations of fact, and they do not constitute any part of an offer or contract. All Hollis Morgan references to planning, tenants, boundaries, potential development, tenure etc is to be superseded by the information contained in the legal pack. It should not be assumed that this property has all the necessary Planning, Building Regulation, or other consents. Any services, appliances and heating system(s) listed have not been checked or tested. Please note that in some instances the photographs may have been taken using a wide-angle lens. The seller does not make any representation or give any warranty in relation to the property, and we have no authority to do so on behalf of the seller.
Although these particulars are thought to be materially correct their accuracy cannot be guaranteed and they do not form part of any contract.
Property data and search facilities supplied by www.vebra.com