3a Bishopthorpe Road
York
YO23 1NA
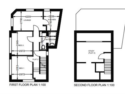
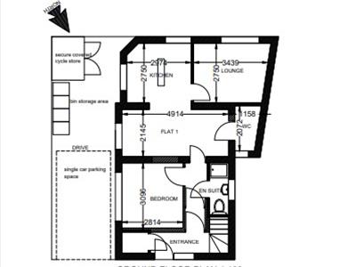
SURE TO BE OF INTEREST TO DEVELOPERS/INVESTORS A FREEHOLD DETACHED BUILDING SET IN THIS SOUGHT AFTER LOCATION CLOSE TO ST PETERS AND BOOTHAM SCHOOLS YORK HOSPITAL AND A SHORT WALK TO THE MINSTER AND IN TO THE CITY CENTRE. CURRENTLY PROVIDING OFFICES OVER 3 FLOORS THE PROPERTY NOW HAS PLANNING CONSENT FOR CONVERSION IN TO TWO APARTMENTS, ONE WITH PARKING ALONG WITH COMMUNAL BIKE/BIN AREA. Initial plans provide a ground floor 1 bedroom apartment and a 2 bedroom first floor with additional attic room. Contact us for further details.
Although these particulars are thought to be materially correct their accuracy cannot be guaranteed and they do not form part of any contract.
Property data and search facilities supplied by www.vebra.com