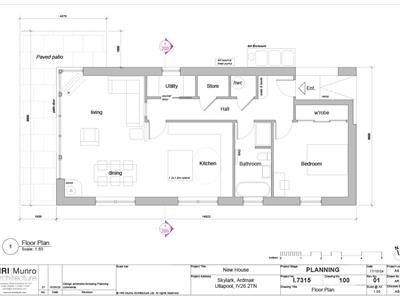
An unmissable opportunity to purchase a desirable building plot that is situated in the semi-rural village of Ardmair, Ullapool, which extends to approximately 0.14 hectares. Occupying an elevated position which affords uninterrupted views of Ben Mor Coigach, The Summer Isles and surrounding countryside, this fantastic space has been granted full planning permission for the erection of a contemporary, detached one bedroomed dwelling and a detached single garage. The land is being sold un-serviced, with services believed to be located nearby. Access to the site is via a well-maintained tarred road and it is predominantly laid to grass, with some rockery. Only by viewing can one appreciate the tranquil setting of this sought after and seldom available position, whilst still having the benefit of being within easy reach of Ullapool and surrounding villages.
Ullapool is a picturesque fishing village on the north-west coast of Scotland, and is known for its natural beauty and vibrant community. Nestled on the shores of Loch Broom, Ullapool offers stunning views of the surrounding mountains and lochs, making it an ideal location for nature lovers and outdoor enthusiasts. The village serves as a gateway to the rugged landscapes of the Northwest Highlands, offering easy access to hiking, cycling, fishing, and wildlife watching. Ullapool is also a major ferry port, offering services to the Outer Hebrides, making it a key link for island travel. Local amenities include shops, cafes, restaurants and a supermarket. There is also has a leisure centre, library and a medical practice. It is an attractive location for those looking to buy land and enjoy a peaceful yet connected lifestyle in the Highlands.
Information on the planning consent can be found by accessing the ePlanning pages on the Highland Council website and entering the reference number 25/00771/MSC
The land is being sold un-serviced.
There is no requirement for interested parties to book a viewing and they are encouraged to view at their leisure.
https://maps.app.goo.gl/f7k6GcdLMS3m8i4fA
Although these particulars are thought to be materially correct their accuracy cannot be guaranteed and they do not form part of any contract.
Property data and search facilities supplied by www.vebra.com