4 Blacker Road
Mapplewell
Barnsley
S75 6BW
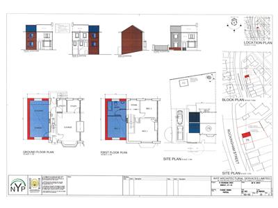
Nestled on Rockingham Street and within easy reach of Barnsley Town Centre, this charming semi-detached house, built in 1935, offers a delightful blend of character and modern convenience. The property features two spacious double bedrooms, making it an ideal choice for first time buyers, investors, small families, or those seeking a comfortable home with room to grow. Especially so as the property sits on a very large plot and comes with planning permission to build and 2 storey extension to add a new kitchen and dining space along with master bedroom with ensuite, enabling the creation of a new Utility area and a small study downstairs. (planning number 2022/1059)
Upon entering, you are welcomed into a generous-sized lounge that provides a warm and inviting atmosphere, perfect for relaxation or entertaining guests. The property benefits from central heating and double glazing, ensuring a cosy environment throughout the year. While the home is ready to move into, a touch of cosmetic updating could enhance its appeal and allow you to personalise the space to your taste.
The exterior of the property boasts a generous garden space, offering ample opportunity for outdoor enjoyment, gardening, or simply unwinding in the fresh air. Additionally, the driveway provides convenient parking for up to two vehicles, a valuable asset in this sought-after area. The extension, if completed, would add a new kitchen & dining room along with a new large front bedroom with ensuite, enabling the creation of a utility area and small study downstairs.
With no vendor chain, this property presents a seamless opportunity for prospective buyers to make it their own without delay. Whether you are a first-time buyer, an investor or looking to downsize, this semi-detached house on Rockingham Street is a fantastic option, combining potential with practicality in a lovely neighbourhood. Don’t miss the chance to view this delightful home and envision the possibilities it holds.
**SUBSTANTIAL PLOT WITH EXISTING PLANNING APPROVED FOR AN EXTENSION -NO ONWARD CHAIN** THIS TWO BEDROOM END TERRACE PROPERTY NEEDS AND LITTLE COSMETIC IMPROVEMENT HOWEVER IS READY TO MOVE INTO AND WOULD SUIT FIRST TIME BUYERS AND INVESTORS ALIKE. THERE IS A GENEROUS LOUNGE, KITCHEN AND ON THE FIRST FLOOR, THE MAIN BATHROOM AND TWO DOUBLE BEDROOMS. EXTERNALLY THERE IS DRIVEWAY PARKING INCLUDING AND OUTSTANDING OUTSIDE SPACE, WHICH IS ON TWO DEEDS, PLUS THE SHED AND FOOTINGS FOR A GARAGE
FREEHOLD / COUNCIL TAX BAND A / ENERGY RATING D
1.06 x 1.07 (3'5" x 3'6")You enter the property through a part glazed Upvc door in to an entrance hallway that has carpet underfoot and a pendant lighting overhead. A carpeted staircase ascends to the first floor landing and a door leads through to the lounge.
3.41 x 4.78 (11'2" x 15'8")This spacious lounge benefits from a large front facing bay window that fills the space with lots of natural light. There is an abundance of space for large pieces of living room furniture and a coal effect gas fire sits within a grey wood fire surround creating a lovely focal point to the room. The room is neutrally decorated, there is a wall mounted radiator, pendant lighting overhead and a grey carpet underfoot. Doors lead through to the kitchen and entrance hallway.
4.34 x 1.83 (14'2" x 6'0" )This modern kitchen is fitted with wood effect wall and base units, complementary square edge work surfaces, stainless steel sink with drainer and mixer tap over and ceramic tile splashbacks. Integrated appliances include an electric oven, four ring electric hob, there is space for a freestanding washing machine and plumbing for a washing machine. Dual aspect windows overlook the rear garden and boast far reaching views and an understairs pantry provides excellent storage of household items. There is grey vinyl flooring underfoot, a wall mounted radiator and a Upvc door provides access to the rear garden. An internal door leads through to the lounge.
1.48 x 1.74 (4'10" x 5'8")A carpeted staircase ascends from the entrance hallway to the first floor landing where there is loft access via a hatch. A side facing window allows natural light in and there is wall lighting. Doors lead through to two bedrooms and bathroom.
3.43 plus recess x 3.38 max (11'3" plus recess x 1This well proportioned master bedroom is located to the front of the property and offers a generous amount of space for bedroom furniture. A front facing window overlooks the tree lined street, there is a built in cupboard, neutral décor to the walls and a cream carpet underfoot. A door leads through to the landing.
2.62 x 2.52 (8'7" x 8'3")Another well proportioned bedroom this time located to the rear and boasting far reaching views through it's window. There is space for a double bed and further freestanding furniture, neutral decor to the walls and a cream carpet underfoot. A door leads through to the landing.
1.72 x 2.33 (5'7" x 7'7")This contemporary bathroom is fitted with a white three piece suite which comprises a bath with overhead electric shower, pedestal hand wash basin and a twin flush low level W.C.. There are decorative tiles to the walls, granite effect panelling to the shower and wood effect vinyl flooring underfoot. A rear obscure glazed window fills the space with light, there is pendant lighting to the ceiling and a door leads through to the landing.
To the front there is a low maintenance garden with concrete patio that will accommodate a small table and chairs, pots and plants. A path runs along the side of the property and provides access to the rear garden.
To the rear there is a lovely enclosed garden. A staircase descends from the property to a concrete patio that will accommodate garden furniture. Further steps lead to an additional garden that is divided by a path that runs to the end of the garden and has a grass lawn to one side and flagged patio to the other. A garden shed sits at the end providing excellent storage of gardening items. There is storage under the staircase that houses the boiler and would easily accommodate bulky outdoor items.
An iron double gate gives access to the hardstanding off road parking complimented by the concrete footings of a previous garage, adding to the potential and options.

TENURE:
Freehold
ADDITIONAL COSTS:
There are no additional costs associated with the property, shared areas or development.
COUNCIL AND COUNCIL TAX BAND:
Barnsley A
PROPERTY CONSTRUCTION:
Standard brick and block
PARKING:
Driveway
PLANNING
Planning permission passed to build a 2 story extension, to add a new kitchen & dining room along with a new large front bedroom with ensuite, enabling the creation of a utility area and small study downstairs
RIGHTS AND RESTRICTIONS:
None
DISPUTES:
There have not been any neighbour disputes
BUILDING SAFETY:
There have not been any structural alterations to the property
PLANNING PERMISSIONS AND DEVELOPMENT PROPOSALS:
There are no known planning applications on neighbouring properties or land and the vendor confirmed they have not received any notices
UTILITIES:
Water supply - Mains
Sewerage - Mains
Electricity - Mains
Heating Source - Mains Gas
Broadband - Suggested speeds up to 1000 mbps
ENVIRONMENT:
There has not been any flooding, mining or quarrying which has affected the property throughout our vendor's ownership.
We are available to do appointments up until 8pm Monday to Friday and up until 4pm Saturday and Sunday so please contact the office if you would like to arrange a viewing. We also offer a competitive sales and letting service, please contact us if you would like to arrange an appointment to discuss marketing your property through Paisley, we would love to help.
Please note information within our sales particulars has been provided by the vendors. Paisley Properties have not had sight of the title documents and therefore the buyer is advised to obtain verification from their solicitor. References to the Tenure of the property are based upon information provided by the vendor and again the buyer should obtain verification from their solicitor.
All measurements are approximate and quoted in metric with imperial equivalents and for general guidance only and whilst every attempt has been made to ensure accuracy, they must not be relied on. We advise you take your own measurements prior to ordering any fixtures, fittings or furnishings.
The fixtures, fittings and appliances referred to have not been tested and therefore no guarantee can be given that they are in working order.
Internal photographs are produced for general information and it must not be inferred that any item shown is included with the property.
You are advised to check availability and book a viewing appointment prior to travelling to view.
Harry Mason at our sister company, Paisley Mortgages, is available to offer clear, honest whole of market mortgage advice. We also run a first time buyer academy to help you prepare in advance for your first mortgage, home-mover and re-mortgage advice. If you would like to speak to Harry, please contact us on 01484 444188 / 07534 847380 to arrange an appointment.
*Your home may be repossessed if you do not keep up repayments on your mortgage. *
We work alongside Michael Kelly at Paisley Surveyors, who can assist you with any survey requirements on your purchase. We offer 3 levels of survey and can be contacted on 01484 501072 / office@paisley-surveyors.co.uk for a free, no obligation quote or for more information.
Large plot with existing planning approved for an extension
Although these particulars are thought to be materially correct their accuracy cannot be guaranteed and they do not form part of any contract.
Property data and search facilities supplied by www.vebra.com