The Nook Grove Lane
Chalfont St. Peter
Gerrards Cross
SL9 9JU
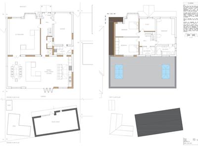
With a carriage driveway to the front, this well-presented 4-bedroom detached family home has kerb appeal. You can move in and call it home, but if you need something alittle bigger there is approved planning to add real size and value to this home (refer to plans in photos).
The Property
To the front of the property, you have a carriage driveway for at least 4 cars.
Across the ground floor, you have a variety of flexible space. Currently set up with the TV snug to the front, spacious eat-in kitchen, a large through reception room, conservatory and office. The office could certainly be used as a 5th bedroom if needed. There is integral access to the garage via the utility room.
On the first floor, you have 4 bedrooms. The master bedroom has fitted wardrobes and runs the length of the home, with a full ensuite bathroom to the rear. There are a further 3 bedrooms, 2 of which are double bedrooms (both with fitted wardrobes) and the 4th being a good-sized single.
To the rear, you have a mature landscaped garden, with a large patio for entertaining. Behind the hedging, there is further storage.
The property has approved planning to be significantly enlarged, if you wanted to make changes in the future photos of plans are in the photos. You can get the full details via Buckinghamshire Planning Portal - reference - PL/25/1250/FA. If you would like to see the plans, please speak to us.
The Local Area
If schooling is a priority, you have a selection of desirable both state and private schools.
For those needing to commute, you have easy access to the A40/M40 & A41. Nearby to Gerrards Cross Overground Station providing direct access to London in 21 minutes. Heathrow is approx 10 miles / 30 mins away.
You are moments' walk from the High Street, providing easy access to amenities (M&S, Tesco, local bakery, restaurants and independent shops). Nearby to even more choices within Gerrards Cross, Amersham and Beaconsfield. Surrounded by green spaces, or independent Yoga & Pilates studios for those wanting to be active.
Essential Information
Stamp Duty. Based the purchase price of £1,225,000 as your sole residents, £66,250.
EPC. D
Council Tax Band. G
Although these particulars are thought to be materially correct their accuracy cannot be guaranteed and they do not form part of any contract.
Property data and search facilities supplied by www.vebra.com