1, Hayes Place, Bear Flat
Bath
BA2 4QW
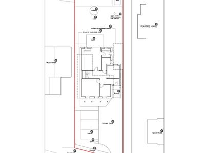
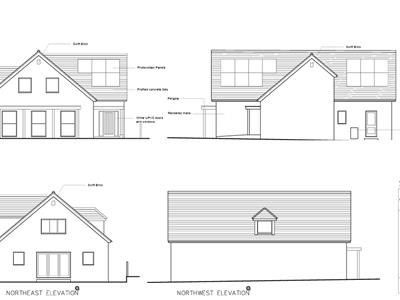
A well proportioned two bedroom extended bungalow located within the desireable area of Norton St. Phillip WITH full planning permission for demolition and erection of a new 2,300sqft five bedroom house.
This is an exciting opportunity for you to take on a self build and create a wonderful home in a fantastic location. With full planning permission granted the plot therefore has the opportunity to transform providing a large 2,300sqft 5 bedroom detached house with expansive space to both floors. Full planning reference 2024/1832/FUL for further information and plans attached to the listing photography.
As the bungalow stands today, it is a well proportioned dwelling in a tidy condition throughout. On entrance to the property and stepping into the hallway, there are doors leading to two double bedrooms located to the front of the property on either side of the hallway. Bedroom one has the added benefit of built in wardrobes and storage cupboard. Thanks to large windows, these rooms are light and airy. The kitchen has and array of wall and base units with some built in appliances, breakfast bar seating and storage cupboard housing a newly fitted Worcester boiler. The bathroom with shower over bath and dining room complete the original part of the property. With thanks to a great sized extension off the dining space there is now an 18'5ft x 11'8ft lounge overlooking the rear garden. There are two floor to ceiling windows to the rear and patio doors leading to the patio area providing plenty of natural daylight to floor the room.
Externally to the front is a great frontage laid mainly to lawn with ample driveway parking. To the side is access to a single garage as well as the rear garden. The rear garden has a fantastic patio area off the lounge, large lawn space and vegetable patch with fruit tree separating the areas. The garden is fully enclosed making it a safe and private area. Built off the rear of the single garage is an outhouse utility area complete with power, water and drainage. This area would make an ideal home office overlooking the garden or continued external utility area.
Norton St. Philip is a well regarded village nestled perfectly between Bath and Frome providing easy commuting and access to train stations. The village itsef is small, yet benefits from some amenities including Co-op supermarket and pubs with plenty of history. The George Inn, a Grade I listed Tuder inn dates back to 1397 and therfore is one of Britains oldest taverns. Other amenities include post office, butchers and bakery along with a well regarded primary schoo and church.
Please note: This property is of non-standard construction, however the extension is of traditional build. If you are buying with a Mortgage, please ensure you have spoken with your Mortgage Advisor or Lender before making your enquiry.
Although these particulars are thought to be materially correct their accuracy cannot be guaranteed and they do not form part of any contract.
Property data and search facilities supplied by www.vebra.com