3 The Boardwalk
Mercia Marina
Findern Lane
Willington
DE65 6DW
This is a most impressive, semi-detached residence occupying a prominent position on Derby Road in Chellaston.
The property occupies an impressive plot with an extensive driveway to the front and side providing excellent off-road parking and access to a detached garage. To the rear of the property there is an impressive, private garden equipped for entertaining family and friends. Featuring a stone patio/terrace ideal for an outdoor kitchen. Having a good size lawn with well-stocked, herbaceous borders, screening hedging, wood store and a very impressive brick built workshop with power and lighting.
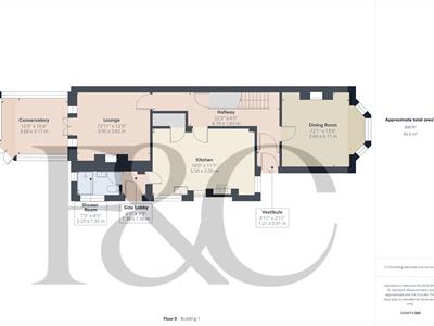
Internally the property features a porch, entrance hall, dining room to front, lounge, conservatory, breakfast kitchen, side lobby and shower room. The first floor landing leads to a principle bedroom with en-suite shower room, two further bedrooms and a bathroom. The second floor features a lounge area, bedroom and shower room.
Chellaston is a popular suburb of Derby City centre with a good range of amenities, shopping parade, two supermarkets, pubs/restaurants, primary school and Chellaston Academy. There is a regular bus service into Derby City centre, excellent access onto the A50 leading to the M1 motorway and swift onward travel to East Midlands Airport.
1.21 x 0.91 (3'11" x 2'11")A panelled entrance door with glazed fan light over provides access to vestibule with Minton tile floor, inset doormat, coving to ceiling and glazed door to entrance hall.
6.76 x 1.83 (22'2" x 6'0")Featuring a beautiful Minton tile floor in excellent condition for a property of this age, central heating radiator, panelled staircase to first floor with feature balustrade and understairs storage cupboard, coving to ceiling and deep skirting boards which continued throughout much of the property.
4.11 x 3.69 (13'5" x 12'1")Featuring a beautiful fireplace with decorative surround, cast iron interior, decorative tile slips, open fire grate and raised hearth, central heating radiator, coving to ceiling, double glazed cant bay window to front with bespoke shutters.
3.95 x 3.82 (12'11" x 12'6")A very cosy room situated to the rear of the property with exposed brick interior to the chimney breast, hearth and cast iron log burner, bespoke wood storage/TV plinth and shelving to the chimney breast recesses, central heating radiator, coving to ceiling, picture rail and French doors with glazed side lights and fan lights above.
3.68 x 3.17 (12'0" x 10'4")A brick based and double glazed construction with multiple windows and French doors overlooking and giving access to the garden.
5.50 x 3.55 (18'0" x 11'7")Featuring a large oak topped breakfast bar incorporating an inset ceramic sink unit with mixer tap, further range of oak preparation surfaces with matching upstands, attractive two tone base cupboards and drawers, chimney breast incorporating a timber lintel, tiled splashback and space for a gas range cooker, further appliance space for a large American style fridge freezer, integrated washing machine and dishwasher, attractive oak topped seat with storage beneath, tiled floor with underfloor heating, stripped panelled door giving access to cellar, central heating radiator, recessed ceiling spotlighting, double glazed windows to side elevation and double glazed window to front with bespoke shutters.
1.36 x 1.36 (4'5" x 4'5")Having a feature tiled floor, external door to side and internal door to well-appointed shower room.
2.23 x 1.35 (7'3" x 4'5")Mainly tiled with a suite comprising low flush WC, wash hand basin, walk-in shower cubicle, chrome towel radiator and double glazed windows to rear and side.
4.21 x 1.81 (13'9" x 5'11")Incorporating a feature galleried landing with continuation of the attractive balustrade and staircase to second floor, central heating radiator and access to additional loft space.
4.97 x 4.17 (16'3" x 13'8")Featuring a beautiful fireplace with cast iron interior, decorative tile slips and open fire grate, central heating radiator, three double glazed windows to front elevation with bespoke shutters and open doorway to dressing room.
With storage and further door to en-suite.
1.88 x 1.78 (6'2" x 5'10")A stylish room with floor and wall tiles, low flush WC, vanity wash handbasin with storage beneath, shower cubicle, chrome towel radiator, recessed ceiling spotlighting and double glazed window to front with bespoke shutters.
3.99 x 3.63 (13'1" x 11'10")With central heating radiator, storage cupboard and double glazed window to rear.
3.60 x 1.54 (11'9" x 5'0")Having a central heating radiator and double glazed window to rear.
2.70 x 1.75 (8'10" x 5'8")Fully tiled with a low flush WC, vanity unit with wash handbasin and cupboard beneath, panelled bath with shower attachment, separate shower cubicle, chrome towel radiator and double glazed window to side.
3.47 x 2.93 (11'4" x 9'7")With feature balustrade, central heating radiator and double glazed window to rear.
5.03 x 1.92 (16'6" x 6'3")Having a central heating radiator, double glazed window to front with bespoke shutters and sliding door to en-suite.
2.25 x 0.87 (7'4" x 2'10")Appointed with a low flush WC, vanity unit with wash handbasin, shower cubicle, chrome towel radiator and recessed ceiling spotlighting.
As mentioned the property occupies a very prominent location on Derby Road. Set back behind an extensive L-shaped driveway providing ample off-road parking and access to a detached garage.
To the rear of the property there is an impressive, private garden equipped for entertaining family and friends. Featuring a stone patio/terrace, part of which features an impressive pitched roof pergola, ideal for an outdoor kitchen. The garden continues with a good size lawn with well-stocked, herbaceous borders, screening hedging, wood store and a very impressive brick built workshop with power and lighting.
5.52 x 2.74 (18'1" x 8'11")With power and lighting.
6.62 x 2.30 (21'8" x 7'6")
Although these particulars are thought to be materially correct their accuracy cannot be guaranteed and they do not form part of any contract.
Property data and search facilities supplied by www.vebra.com