41a High Street
Cowes
Isle Of Wight
PO31 7RS
Superb Self-Build Opportunity – Building Plot with Planning Consent. Ref No 24/01632/FUL.
A rare opportunity to acquire a building plot with full consent for the construction of a detached three-bedroom cottage, ideally situated just minutes from the bustling town of Cowes. Set within surrounding gardens and benefiting from off-road parking, this plot offers the perfect canvas to create a bespoke home tailored to your lifestyle.
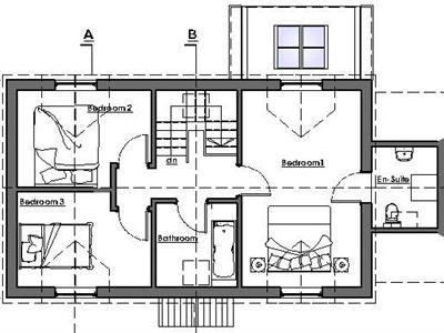
The approved plans feature a thoughtfully designed layout, including:
Spacious lounge
Open-plan kitchen/dining room
Handy utility room
Convenient cloakroom
Family bathroom and en-suite shower room to the master bedroom
Located just a short drive from Cowes’ vibrant high street, with its wide range of shops, restaurants, and amenities, the plot also enjoys easy access to the high-speed passenger ferry to Southampton—ideal for commuters or regular mainland travellers.
Whether you're a self-builder or looking for a hands-on development project, this is an excellent opportunity to build your dream home with your own personal input and design flair.
Don’t miss out on this exciting chance to create a unique home in a desirable location.
Water: A private mains supply (to Somerton Farm Cottage) is nearby which the purchaser can connect to. Standing and Volumetric charges will be sub-metered, apportioned and shared between the property and Somerton Farm Cottage.
Electricity: A company mains supply is situated nearby which the purchaser can connect to.
Gas: There is no mains gas. It is anticipated that the new dwelling will be heated by electricity (air source heat pump), bulk gas or oil.
Foul Drainage: The property is to drain to a new Package Sewage Treatment Plant (PSTP) shared with Somerton Farm Cottage. The cost of installation and ongoing maintenance/emptying will be shared between the two properties. An application has been made to change the PSTP to an alternative make, which has been accepted by the Isle of Wight Council.
The property is adjacent to a field which is subject to an Outline Planning Application for residential development (granted September 2025). Details are available on the Isle of Wight Council's website Planning Application Search Ref: 22/01720/OUT. The indicative layout plans show a significant undeveloped area between the property and the new houses which should provide ample buffering and screening.
Although these particulars are thought to be materially correct their accuracy cannot be guaranteed and they do not form part of any contract.
Property data and search facilities supplied by www.vebra.com