82 Blackdyke Road
Kingstown Industrial Estate
Carlisle
Cumbria
CA3 0PJ
Vicinity Homes are delighted to offer to the market this deceptively spacious, two double bedroom, extended semi detached cottage situated within the popular semi rural location of Cotehill. The village is approximately 6 miles South East of Carlisle City Centre and has good access onto the A6 and the M6 Motorway. The accommodation briefly comprises of an entrance porch, lounge open to a dining room, inner hallway, modern shower room and a spacious dining kitchen. To the first floor there are two double bedrooms. The property also benefits from double glazing, central heating, front garden, store and a good sized garden to rear. Viewing is absolutely essential to fully appreciate the accommodation on offer. An ideal purchase for first time buyers! The property does require some modernisation and is offered to the market with no onward chain.
From Carlisle proceed South along the A6. Turn left where signposted for Cotehill. Continue on this road. At the T junction turn right and continue on this road. Upon entering Cotehill, turn right onto Front Street. The property is situated on the right hand side and can be identified by our "For Sale" sign.
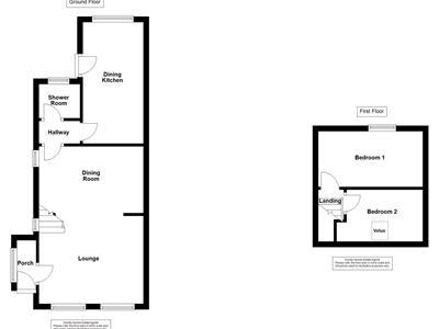
2.223m x 1.085m (7'3" x 3'6")Approached by a door to front.
5.278m x 4.376m (17'3" x 14'4")Incorporating two double glazed windows to front, double glazed window to side, two radiators, feature beams and a feature fireplace with a gas stove.
5.253m x 3.036m (17'2" x 9'11")Incorporating a double glazed window to side, radiator, feature beams, coving to the ceiling and a feature fireplace with an open fire.
Incorporating feature beams and the boiler.
2.009m x 1.497m (6'7" x 4'10")Incorporating a three piece suite comprising of a double shower cubicle, wash hand basin set to vanity unit and WC. Double glazed obscured window to rear, heated towel rail, splash boards and panelled ceiling.
5.777m x 2.762m (18'11" x 9'0")Incorporating a range of fitted wall and base units with complementary work surface over, oven point, cooker hood over, tiled splash areas and 1.5 sink unit with mixer tap. Plumbing for a washing machine, plumbing for a dishwasher, space for a fridge/freezer, double glazed window to rear, door to side, radiator and feature beams.
5.023m x 2.508m (16'5" x 8'2")A double bedroom incorporating a double glazed window to rear, radiator and feature beams.
There are views over the rear garden and fields in the distance from Bedroom One.
3.869m x 2.309m (12'8" x 7'6")A smaller double bedroom incorporating a double glazed skylight to front, radiator, built in storage cupboard and storage into the eaves.
The property is approached by double gates with a slope and steps leading to the front garden and access to the store. There is also a shillied area and flower & shrub beds. To the rear of the property there is a good sized enclosed garden with lawn area, flower & shrub beds, outside tap and gated access to the front.
5.454m x 2.544m (17'10" x 8'4")Incorporating an up and over door, door to side, double glazed window to rear, power and lighting.
Please note, the floor plan is not to scale and should be used for illustrative purposes only.
The property is Freehold.
https://find-energy-certificate.service.gov.uk/energy-certificate/6735-7328-7500-0387-3206
The property is in Council Tax Band A.
We routinely refer potential purchasers to Mortgage Advisers - Fisher Financial Associates. It is your decision whether you choose to deal with Fisher Financial Associates. In making that decision, you should know that we will receive commission from the company worth approximately £50 depending on any business written.
Referral Fees - Vicinity Homes work with preferred conveyancers for a house sale or purchase. You are under no obligation to use their services. Should you choose to use them, Vicinity Homes Estate Agents will receive a referral fee of between £120.00 to £150.00 on completion of a sale or purchase.
Strictly through arranged appointments by Vicinity Homes. To arrange a viewing, please contact: T: 01228 599011 or E: sales@vicinityhomes.co.uk.
These particulars, whilst believed to be accurate, are set out for guidance only and do not constitute any part of an offer or contract - intending purchasers should not rely on them as statements or representations of fact, but must satisfy themselves by inspection or otherwise as to their accuracy. All electrical appliances mentioned in these details have not been tested and therefore cannot be guaranteed to be in working order.
To register your buying information and receive updates on all our available properties, please contact Vicinity Homes on 01228 599011 or via email to sales@vicinityhomes.co.uk.
We would be pleased to provide you with a free, no obligation valuation for your home. Please contact Vicinity Homes on 01228 599011 or via email to sales@vicinityhomes.co.uk to arrange an appointment.
Although these particulars are thought to be materially correct their accuracy cannot be guaranteed and they do not form part of any contract.
Property data and search facilities supplied by www.vebra.com