Situated between the villages of Kingswood and Chipstead, we are delighted to offer this rare opportunity to acquire a site for two detached family homes, designed with a modern, contemporary edge, with both access and site cleared and ready to take to the next stage.
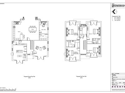
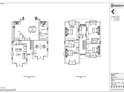
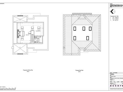
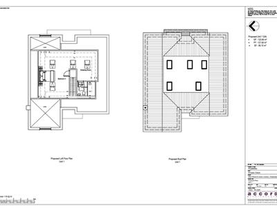
Planning reference is 22/0146/F and we have documentation from the application with regarding planning conditions, together with a topographical report. The two 5 bedroom detached houses measure around 3284 sq ft and 3024 sq ft, and provide light and spacious accommodation, which is all reflected in the design.
This location is situated between the villages of Kingswood and Chipstead, with easy access to Banstead Woods. Chipstead Village offers the best of both worlds—charming country living with superb connectivity. Coulsdon South station is just a short drive away, providing fast rail links into central London. Locally, you’ll find a thriving village hub with a post office, independent shops, a boutique wine merchant, and a beloved bistro. For broader retail and leisure options, Banstead Village and Coulsdon are both within easy reach. Families are well served with excellent schools in both the state and private sectors, and a vibrant range of local clubs including Chipstead Rugby, Golf, Football, and Tennis Clubs. The White Hart pub—a local institution—and the historic Courtyard Theatre, celebrating over 100 years of performances, are just a short stroll away.
The village of Kingswood provides a reliable commuter line to London, as well as a number of local traders such as Londis store, newsagent, Coughlans bakery, beauty salon, Indian restaurant and Kingswood Arms pub. There are two local golf courses to choose from, in Surrey Downs and Kingswood Golf and Country Club, and the local Kingswood tennis club, as well as a selection of Independent and State schools, all within easy reach. The villages of Banstead, Walton on the Hill and Tadworth provide further facilities and shopping choice, whilst the main towns of Epsom and Reigate are easily accessible. The M25 motorway is reached at either junction 8 or 9, which are approximately equidistant between both Gatwick and Heathrow airport, and Kingswood Mainline station provides a regular service to London Bridge, or other London Stations via Purley and East Croydon.
For more information or to arrange a private viewing please contact Peter Kennedy or one of the sales team.
Although these particulars are thought to be materially correct their accuracy cannot be guaranteed and they do not form part of any contract.
Property data and search facilities supplied by www.vebra.com