Fax: 01834 844730
Tudor Square
Tenby
Pembrokeshire
SA70 7AJ
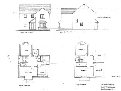
An exciting opportunity to purchase two building plots, with planning permission for the proposed use or development of two detached residential dwellings (w/40531). The site is centrally located in the semi-rural village of Llangyldwen, adjacent to the Penybont Inn. To built of a traditional material, the proposed two storey dwellings, will have three bedrooms, their own rear gardens and a shared driveway.
The plots can either be a great investment for someone looking to build the property for re-sale or an opportunity to build your own dream home in a sought after village location. Conveniently located close to the train station in Clynderwyn, which ideal for commuters. The local schools of Clynderwen Becca School and Llandysilio, are also just a short drive away.
Llanglydwen is a small, tranquil village situated approximately 11 miles from the town of Narberth. Narberth or Arberth in Welsh plays a high profile in Welsh mythology. The former town hall still houses the cell where those involved in the Rebecca Riots were imprisoned. To learn more about the history of Narberth visit its brilliant museum. It is also home to several sporting teams, including Narberth RFC who currently play in the Welsh Championship and Narberth Football and Cricket club. Narberth is full to the brim with independent shops including craft and art galleries, bars and restaurants and boutiques. The town has everything you can need with health, dental, fitness and community centres and a Museum. Narberth is twinned with Ludlow and both towns celebrate an annual food festival which takes place on the fourth weekend of September every year. There is a regular bus service running to Haverfordwest, Carmarthen and the outlying villages and a railway station. For the children there is a primary school and a nursery school. Narberth is within close proximity to the blue flag beaches of Tenby and Saundersfoot and easy access to the County Towns of Haverfordwest and Carmarthen.
VIEWING: By appointment only via the Agents.
TENURE: We are advised Freehold
SERVICES: We have not checked or tested any of the services or appliances at the property.
COUNCIL TAX: N/A
ref: NME / LLE / JULY / 25/OK
FACEBOOK & TWITTER
Be sure to follow us on Twitter: @ WWProps
https://www.facebook.com/westwalesproperties/
Although these particulars are thought to be materially correct their accuracy cannot be guaranteed and they do not form part of any contract.
Property data and search facilities supplied by www.vebra.com