18 Market Place
Patrington
East Yorkshire
HU12 0RB
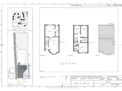
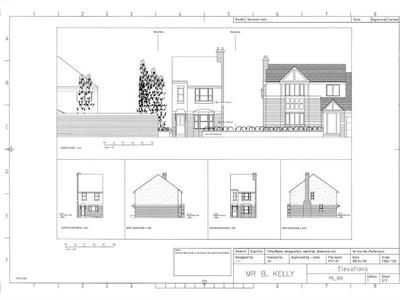
Frank Hill & Son are pleased to offer a unique excellent opportunity to purchase a residential development site with full planning permission for one custom-built dwelling situated in the centre of the village of Patrington. Please note the planning allows for demolition of existing brick building. Convenient to local schools and amenities. Residential Development Site 15A High Street, Patrington, Guide Price £59,000.
Detailed planning permission 24/02319/OUT was granted on the 4th of November 2024 by the EYRC. For the erection of a custom-built dwelling (subject to conditions). Full details are available from the agents. Any further enquiries should be made to the planning officer at the East Riding Of Yorkshire Council.
The property is registered with covenants.
Previously but not presently connected. Mains water, electricity, sewage and gas are available on High Street. Any intending purchaser to satisfy themselves as to mains connection requirements.
Freehold with vacant possession.
Solicitors David Macnamara Sandersons, 187 Queen Street, Withernsea, HU19 2JR, 01964 612318
The exchange of contracts is to take place 28 days after receipt by the purchaser's solicitor of a draft contract.
Viewings are strictly by appointment with Frank Hill and Son.
On the 26th of June 2017, the Fourth Money Laundering Directive came into effect. As a consequence of this new legislation, the vendor's agents will need to undertake due diligence checks of potential purchasers prior to an offer being accepted. Please contact the agents for further information that the Money Laundering 2003 and Immigration Act 2014 intending purchasers will be asked to produce identification documentation.
The plans have been prepared and the areas in the particulars are stated for the convenience of the purchases and are based on the ordnance survey map with the sanction of the controller of H M A stationary officer. The plans and particulars are believed to be correct but their accuracy cannot be guaranteed and no claims for omissions be admitted.
Although these particulars are thought to be materially correct their accuracy cannot be guaranteed and they do not form part of any contract.
Property data and search facilities supplied by www.vebra.com