39 Havelock Road
Hastings
East Sussex
TN34 1BE
*** GUIDE PRICE £90,000 TO £100,000 - INVESTMENT OPPORTUNITY ***
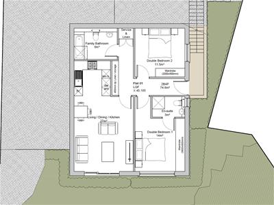
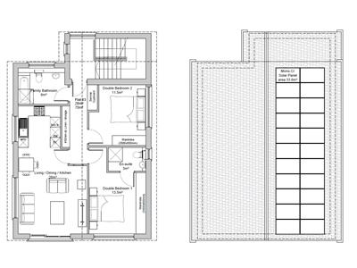
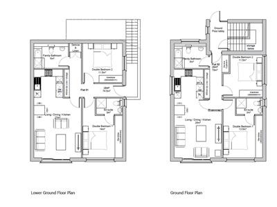
PCM Estate Agents present to the market this opportunity to acquire a DEVELOPMENT OPPORTUNITY to construct a DETACHED BUILDING comprising of 3X TWO BEDROOM FLATS. More information can be found under Planning Ref: HS/DS/21/00929.
Positioned on this sought-after cul-de-sac in West St Leonards, close to a vast range of amenities, the seafront and promenade.
We have been advised of the following by the vendor:
•Outline Planning permission no. HS/OA/18/00726, obtained on 13/08/2018, permits the erection of four two-bedroom flats.
•Initially, the Reserved Matters application reference no. HS/DS/21/00929, to build three numbers of two-bedroom flats, was refused on 19/01/2023.
•However, the Appeal reference no. APP/B1415/W/23/3326196, which had been registered, was granted on 23/08/2024, allowing the construction of three two-bedroom flats for four persons.
•All relevant pre-build conditions have been discharged under application numbers HS/CD/24/00664 and HS/CD/24/00740 by 11/11/2024.
•From November 2024 according to the above-mentioned references of the appeal, planning permission, and discharged conditions, 14-16 Harley Way is ready to commence construction.
Although these particulars are thought to be materially correct their accuracy cannot be guaranteed and they do not form part of any contract.
Property data and search facilities supplied by www.vebra.com