9 Waterloo Street
Clifton
Bristol
Avon
BS8 4BT
Hollis Morgan – SEPTEMBER LIVE ONLINE AUCTION – A Freehold BUILDING PLOT with PLANNING GRANTED to erect a contemporary 3 BED | 3 BATH MEWS HOUSE with INTEGRAL GARAGE.
*** SOLD @ SEPTEMBER LIVE ONLINE AUCTION ***
GUIDE PRICE £95,000 +++
SOLD @ £120,000
ADDRESS | Plot to rear of 21c Wellsway, Bruton Avenue, Bear Flat, Bath BA2 4RR
Lot Number 12
The Live Online Auction is on Wednesday 17th September 2025 @ 17:30
Registration Deadline is on Monday 15th September 2025 @ 16:00
The Auction will be streamed LIVE ONLINE via the Hollis Morgan website & you can choose to bid by telephone, proxy or via your computer.
Registration is a simple online process – please visit the Hollis Morgan auction website and click “REGISTER TO BID”
On this occasion the vendors will NOT be considering pre auction offers.
The site comprises a rank of 5 single garages with an additional strip of land to the rear.
Sold with vacant possession.
Tenure - Freehold
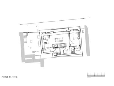
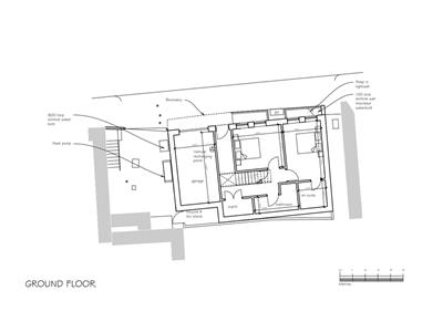
RESI PLANNING | MEWS HOUSE
Planning has been granted ( 24/04008/FUL ) to erect a contemporary 3 Bedroom Mews House with upside down accommodation, terrace and integral garage in this most sought after and convenient of locations.
Ground Floor - Bedroom 1 | En Suite | Bedroom 2 | Bathroom | Integral Garage
First Floor - Open Plan Kitchen / Diner / Living Space | Terrace | Utility | Study Area | WC | Bedroom 3 | En Suite
We are informed that the seller has installed water supply pipes to the site.
Please note - A CIL payment will be payable by the Buyer, calculated at a minimum of £21,222.69. The Seller shall have no liability for this payment or for any other payments associated with the Property after completion.
Please refer to the legal pack for more details.
Conveniently positioned for easy access to the main city centre a 0.3 mile walk. Bearflat and its many amenities is also a short 0.3 mile walk. He you will find a choice of eateries, independent shops and convenience stores. Bath Spa railway station is a 0.4 mile walk. If looking for local green space then Alexandra Park is a 0.5 mile walk and offers acres of green space and stunning views of the city.
Planning Application Reference: 24/04008/FUL
Garages To Rear Of 21C Wellsway, Bruton Avenue, Bear Flat, Bath, Bath And North East Somerset,
Proposal - Demolition of existing disused garages and the erection of 1No new dwelling
Type of Application - Full Application
Status - Application Permitted
Ward - Widcombe And Lyncombe
Decision - PERMIT
Decision Type - Delegated
Planning Portal Reference Number - PP-13508469
Full details of the proposed scheme and drawings can be downloaded with the online legal pack.
What rent could be achieved?
Aspire To Move have extensively reviewed the property and similar listings in the area. The property is in
need of refurbishment and our figures are based on the work being completed. With our knowledge of
the local market, and considering the current market conditions we would estimate the property could
achieve a rental figure in the region of: £2,200 - £2,700 PCM
If you would like to discuss this in more detail, then please do not hesitate to contact me on 01225
444333 or email me info@aspiretomove.co.uk.
Katherine Oakes
Thatcher + Hallam LLP
01761 409337
koakes@th-law.co.uk
https://th-law.co.uk/
EXTENDED COMPLETION
Completion is set for 8 weeks or earlier subject to mutual consent.
VIEWINGS
Please submit a viewing request online and we will contact you to organise an appointment.
We will send you an email and text to confirm the appointment time and the full property address.
Viewings are supervised by a member of the Hollis Morgan Auction team who will meet you at the property.
MATERIAL INFORMATION
Information including utilities, Electricity supply, Water supply, Sewerage, Heating, Broadband, Mobile signal / coverage, Parking, Building safety, Restrictions and rights, Rights and easements, Flood risk, Erosion risk, Coastal erosion risk, Planning permission for proposal for development, Property accessibility / adaptations, Coalfield or mining area all of which will be supplied within the legal pack that can be accessed for free via the Hollis Morgan website or via your EIG account.
ONLINE LEGAL PACKS
Digital Copies of the Online legal pack can be downloaded Free of Charge.
Please visit the Hollis Morgan Website and select the chosen lot from our Current Auction List.
Press the GREEN button to "Download Legal Packs" For the first visit you will be required to register simply with your email and a password.
Having set up your account you can download legal packs or if they are not yet available, they will automatically be sent to you when we receive them.
You will be automatically updated by email if any new information is added.
There will be a note added to the list to confirm AUCTION PACK NOW COMPLETE when no further information is due to be added.
*** STAY UPDATED *** By registering for the legal pack we can ensure you are kept updated on any changes to this Lot in the build up to the sale.
BUYER’S PREMIUM
Please be aware all purchasers are subject to a £1,500 + VAT (£1,800 inc VAT) buyer's premium which is ALWAYS payable upon exchange of contracts whether the sale is concluded before, during or after the auction date.
GUIDE PRICE
An indication of the seller's current minimum acceptable price at auction. The guide price or range of guide prices is given to assist consumers in deciding whether to pursue a purchase. It is usual, but not always the case, that a provisional reserve range is agreed between the seller and the auctioneer at the start of marketing. As the reserve is not fixed at this stage and can be adjusted by the seller at any time up to the day of the auction in the light of interest shown during the marketing period, a guide price is issued. This guide price can be shown in the form of a minimum and maximum price range within which an acceptable sale price (reserve) would fall, or as a single price figure within 10% of which the minimum acceptable price (reserve) would fall. A guide price is different to a reserve price (see separate definition). Both the guide price and the reserve price can be subject to change up to and including the day of the auction.
RESERVE PRICE
The seller's minimum acceptable price at auction and the figure below which the auctioneer cannot sell. The reserve price is not disclosed and remains confidential between the seller and the auctioneer. Both the guide price and the reserve price can be subject to change up to and including the day of the auction.
REGISTRATION PROCESS
The registration process is extremely simple – visit the Hollis Morgan auction website and click on the “Register to Bid” button.
The “Register to Bid” button can be found on the auction home page or on the individual lot listings.
Please note this function is not available on Rightmove or Zoopla.
Stage 1 – Complete the Online Bidding Form
Stage 2 – Upload your certified ID
Stage 3 – Invitation to bid
Stage 4 – Pay your security deposit (£6,800)
You are now ready to bid – Good luck!
If your bid is successful, the balance of the deposit monies must be transferred to our client account within 24 hours of the auction sale.
If you are unsuccessful at the auction your holding deposit will be returned within 48 hours.
SURVEYS AND VALUATIONS
If you would like to arrange a survey or mortgage valuation of this Lot BEFORE the auction, please instruct your appointed surveyor to contact Hollis Morgan and we will arrange access for them to inspect the property. Please note that buyers CANNOT attend the surveys and the surveyors are responsible for collecting and returning keys to the Hollis Morgan offices in Clifton.
AUCTION FINANCE & BRIDGING LOANS
Some properties may require specialist auction finance- please contact Hollis Morgan for access to expert advice and whole of market rates from our independent brokers.
Hollis Morgan may receive introductory fees for this service from the broker.
AUCTION BUYER’S GUIDE VIDEO
We have short video guides for both buying and selling by Public Auction on the Hollis Morgan Website. If you have any further questions regarding the process, please don’t hesitate to contact Auction HQ.
2025 CHARITY OF THE YEAR
Hollis Morgan is supporting Uncle Pauls Chilli Charity empowering socially disadvantaged people with barriers to learning &/or disabilities based in Butcombe, North Somerset, our land overlooks the Mendip Hills and Blagdon lake. There are three main areas of focus at Uncle Paul’s Chilli Charity Education, Wellbeing and Social Prescribing – visit www.chillicharity.org.uk/ for more details or the Hollis Morgan Charity Page of our website.
AUCTION PROPERTY DETAILS DISCLAIMER
Hollis Morgan endeavour to make our sales details clear, accurate and reliable in line with the Consumer Protection from Unfair Trading Regulations 2008 but they should not be relied on as statements or representations of fact, and they do not constitute any part of an offer or contract. All Hollis Morgan references to planning, tenants, boundaries, potential development, tenure etc is to be superseded by the information contained in the legal pack. It should not be assumed that this property has all the necessary Planning, Building Regulation, or other consents. Any services, appliances and heating system(s) listed have not been checked or tested. Please note that in some instances the photographs may have been taken using a wide-angle lens. The seller does not make any representation or give any warranty in relation to the property, and we have no authority to do so on behalf of the seller.
Although these particulars are thought to be materially correct their accuracy cannot be guaranteed and they do not form part of any contract.
Property data and search facilities supplied by www.vebra.com