79 Queens Road
Clarendon Park
Leicester
Leicestershire
LE2 1TT
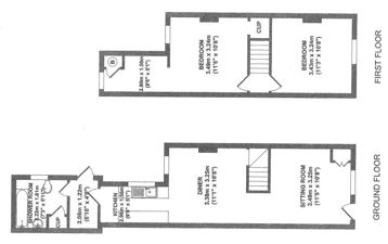
BARKERS are pleased to offer a MID TERRACED property in a popular CLARENDON PARK location providing good access to the LRI and popular Queens Road. The accommodation comprises of a through lounge/diner, kitchen with oven and hob, fridge, lobby area with freezer, washing machine, dishwasher and tumble dryer and a ground floor bathroom with a shower over the bath. Stairs to TWO DOUBLE BEDROOMS and a STUDY/DRESSING ROOM. Available FURNISHED the property benefits from GCH & DG and has a courtyard garden. Viewing is HIGHLY RECOMMENDED. HOLDING DEPOSIT £250
Although these particulars are thought to be materially correct their accuracy cannot be guaranteed and they do not form part of any contract.
Property data and search facilities supplied by www.vebra.com