3 Broadway
Sheerness
Kent
ME12 1AB
FULL PLANNING PERMISSION GRANTED
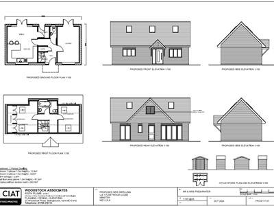
In the sought after area of Fleetwood Close, Minster On Sea, Sheerness, this exceptional building plot presents a remarkable opportunity for both self-build enthusiasts and developers alike. With full planning permission granted for a two-bedroom, two-storey detached bungalow, this property is ready for you to bring your vision to life. The planning reference number is 24/504614/FULL, which can be easily accessed for further details.
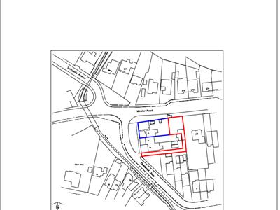
The plot is ideally situated just a stone's throw away from local shops and amenities, ensuring that everyday conveniences are within easy reach. This prime location in Minster is highly sought after, making it an attractive prospect for those looking to invest in a new home or a lucrative development project.
With two double bedrooms and the potential for a spacious reception area, the planned bungalow offers a comfortable living space that can be tailored to your specific needs. The opportunity to create a bespoke home in such a charming community is rare, and this plot is not to be missed.
Whether you are a first-time buyer looking to build your dream home or a seasoned developer seeking a promising project, this land offers the perfect canvas to create something truly special. Embrace the chance to design a property that reflects your personal style in a location that combines convenience with a welcoming atmosphere.
James Perry do not provide advice or recommendation on planning and all enquiries should be dealt with by SBC.
Although these particulars are thought to be materially correct their accuracy cannot be guaranteed and they do not form part of any contract.
Property data and search facilities supplied by www.vebra.com