Unit F, Taylor House, Roman Gate, Saxon Way, Great Denham
Bedford
MK40 4FU
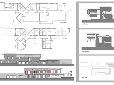
Taylor Land is delighted to bring to the market this rare building plot located in one of Bedford's most sought after locations. The site is accessed by a private gated driveway and is being sold with planning permission in place for an impressive 'grand designs' style residence. The planning has already been implemented as the footings have been laid. 
Renhold is a rural village located just 4 miles north of Bedford Town Centre. Local amenities include a village hall, post office/general store and The Polhill Arms Pub, whilst further shopping and recreational facilities are available in Bedford Town Centre.
All offers are to be submitted in writing to Taylor Land Limited. Preference will be given to parties that demonstrate they have undertaken full analysis of the site.
Although these particulars are thought to be materially correct their accuracy cannot be guaranteed and they do not form part of any contract.
Property data and search facilities supplied by www.vebra.com