134 London Road North
Lowestoft
Suffolk
NR32 1HB
Excellent freehold building plot with full planning permission for the erection of a detached 2 bedroom bungalow with ample car standing space. The property is quietly located just off a private roadway set well back from Elm Tree Road and is within easy travelling distance of Oulton Broad, with its excellent boating and recreational facilities. Lowestoft and its outstanding beach is also easily accessible being within 2 1/2 to 3 miles distant.
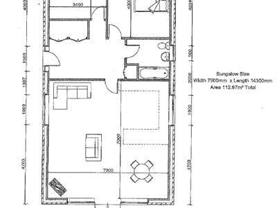
The site extends to approximately 1. (26.6 meters by 10.10 metres). 2. Plus the driveway (10.7 meters x 7.6 meters). Site Size Approximate total = 350 square meters.
Please note the property has rights of way across the unmade access road from Elm tree Road.
As far as we are informed, there are no repairing obligations on neighbouring properties who use the road, but we understand those properties usually make minor repairs as and when needed.
Full planning permission was granted on the 2nd October 2023 Ref: DC/23/3638/FUL for the construction of a new 2 bedroom bungalow. Full details can be found on East Suffolk Council Planning website under Public Access.
This property has:
Mains Water.
Flood Risk Info: Very low
* Broadband: Could achieve Ultrafast 1800 Mbps download 220 Mbps upload
* Mobile: EE, 02, THREE, VODAFONE ALL LIKELY
* Disclaimer: This information is based on predictions provided by Ofcom. Applicants should carry out their own enquiries to satisfy themselves that the coverage is adequate for their requirements.
Although these particulars are thought to be materially correct their accuracy cannot be guaranteed and they do not form part of any contract.
Property data and search facilities supplied by www.vebra.com