82 Blackdyke Road
Kingstown Industrial Estate
Carlisle
Cumbria
CA3 0PJ
Vicinity Homes are delighted to offer to the market this immaculately presented, four double bedroom detached dormer bungalow situated in a popular residential area to the South of Carlisle City Centre. The property is close to a range of local amenities, regular bus route, popular Primary & Secondary Schools and has good access to the City Centre and the M6 Motorway. The accommodation briefly comprises of an entrance hallway, breakfast kitchen, lounge with multi fuel stove, garden room, two double bedrooms and a modern four piece bathroom. To the first floor there is a spacious landing/dressing area, two further double bedrooms and a modern bathroom. The property also benefits from double glazing, central heating, ample on site parking for several vehicles, detached garage and generous sized gardens to front and rear. Viewing is absolutely essential to fully appreciate the accommodation on offer. An ideal purchase for a family!
Proceed South along Currock Road and continue straight ahead at the round about onto Blackwell Road and onto Durdar Road. The property is situated on the left hand side and can be identified by our "For Sale" sign.
Approached by a door to side, incorporating LVT flooring, built in storage cupboard, radiator and stairs to the first floor.
4.558m x 2.867m (14'11" x 9'4")Incorporating a range of modern fitted wall and base units with complementary work surface over, breakfast bar, oven point and cooker hood. Tiled splash areas, 1.5 sink unit with mixer tap, integrated dishwasher, plumbing for a washing machine and space for a tumble trier. Space for a fridge/freezer, two double glazed windows to rear, radiator, LVT flooring and inset ceiling lights.
5.351m x 3.347m (17'6" x 10'11")Incorporating a double glazed window to front, radiator, coving to the ceiling and a feature fireplace with a multi fuel stove.
3.776m x 1.866m (12'4" x 6'1")Incorporating double glazed windows to rear & side, radiator, LVT flooring and door to rear.
4.323m x 3.328m max (14'2" x 10'11" max)A double bedroom incorporating a double glazed window to front and a radiator.
4.092m x 2.725m (13'5" x 8'11")A double bedroom incorporating a double glazed window to front, radiator, vinyl flooring and fitted wardrobe/storage.
2.722m x 2.726m (8'11" x 8'11")Incorporating a modern four piece suite comprising of a bath with mixer tap, shower cubicle, pedestal wash hand basin and WC. Double glazed obscured window to rear, heated towel rail, tiled splash areas, LVT flooring, built in storage cupboard, extractor fan and inset ceiling lights.
Incorporating a double glazed skylight to front, double glazed skylight to rear, radiator, built in storage cupboard and storage into the eaves.
6.284m x 3.320m (20'7" x 10'10")A double bedroom incorporating a double glazed window to rear, radiator, built in storage cupboard and fitted wardrobes.
There are views over the rear garden from the dormer windows.
6.269m x 2.791m (20'6" x 9'1")A double bedroom incorporating a double glazed window to rear, radiator and built in storage cupboard.
2.850m x 1.884m (9'4" x 6'2")Incorporating a modern three piece suite comprising of a bath with mixer tap & shower attachment, pedestal wash hand basin and WC. Double glazed window to rear, heated towel rail, tiled splash areas, inset ceiling lights, extractor fan and LVT flooring.
The property is approached by ample on site parking for several vehicles at the front and side of the house leading to the detached garage. There is also a lawn area, an outside power point and gated access to the rear garden. At the rear of the property there is a good sized rear garden with a timber decked seating area, lawn area, Summer House and gated access to the front.
3.361m x 2.761m (11'0" x 9'0")Incorporating double glazed patio doors to side and an extractor fan.
6.884m x 2.755m (22'7" x 9'0")Incorporating an up and over door, power, lighting and door to side.
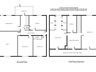
Please note, the floor plan is not to scale and should be used for illustrative purposes only.
https://find-energy-certificate.service.gov.uk/energy-certificate/2305-3051-9206-5155-9200
The property is in Council Tax Band C.
The property is Freehold.
Strictly through arranged appointments by Vicinity Homes. To arrange a viewing, please contact: T: 01228 599011 or E: sales@vicinityhomes.co.uk.
We routinely refer potential purchasers to Mortgage Advisers - Fisher Financial Associates. It is your decision whether you choose to deal with Fisher Financial Associates. In making that decision, you should know that we will receive commission from the company worth approximately £50 depending on any business written.
Referral Fees - Vicinity Homes work with preferred conveyancers for a house sale or purchase. You are under no obligation to use their services. Should you choose to use them, Vicinity Homes Estate Agents will receive a referral fee of between £120.00 to £150.00 on completion of a sale or purchase.
These particulars, whilst believed to be accurate, are set out for guidance only and do not constitute any part of an offer or contract - intending purchasers should not rely on them as statements or representations of fact, but must satisfy themselves by inspection or otherwise as to their accuracy. All electrical appliances mentioned in these details have not been tested and therefore cannot be guaranteed to be in working order.
To register your buying information and receive updates on all our available properties, please contact Vicinity Homes on 01228 599011 or via email to sales@vicinityhomes.co.uk.
We would be pleased to provide you with a free, no obligation valuation for your home. Please contact Vicinity Homes on 01228 599011 or via email to sales@vicinityhomes.co.uk to arrange an appointment.
Although these particulars are thought to be materially correct their accuracy cannot be guaranteed and they do not form part of any contract.
Property data and search facilities supplied by www.vebra.com