Vine House, Church Street
Ashbourne
Derbyshire
DE6 1AE
Delightfully situated, backing onto fields, stands this intriguing range of outbuildings which have planning consent approved for change of use to two separate single storey detached dwellings.
Delightfully situated set back from the road backing onto fields within the much sought after village of Dalbury Lees stands this intriguing range of outbuildings which have planning consent approved for change of use to two separate single storey detached dwellings.
The planning consent also permits the formation of a new access from the lane side leading to the barn.
Dalbury Lees is splendidly positioned being equidistant from the historic market town of Ashbourne, and the City of Derby. It has a popular local public house and village hall which enhance this village community.
A unique development opportunity which cannot be viewed from the kerb side therefore an onsite inspection is essential to appreciate the location and potential of the site on offer .
The site extends to approximately 0.57 acres in all.
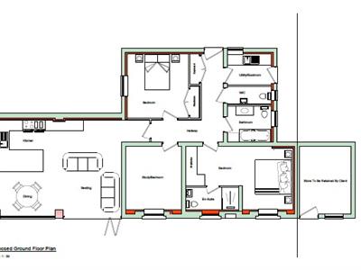
Barn one is a more traditional barn in part with the proposal of a more contemporary element once converted. It is positioned at right angles to Barn Two.
The proposal is for open plan living space in the more contemporary part with large glazed doors designed to flood the rooms with light, while the bedroom areas are proposed to be in the more traditional area of the barn.
Further details on the planning consent can be found on the South Derbyshire website application no. DMPN/2025/0325.
Barn Two is proposed as a single storey conversion of a modern steel portal framed former agricultural building. It is idyllically situated to the rear of the plot with open farmland to the rear.
The proposal is for open plan living/dining kitchen space which would enjoy the stunning outlook and separate lounge on the rear. Three formal bedrooms would be afforded with the master bedroom having an en-suite also at the back to make the most of the open outlook of the barn.
Further details on the planning consent can be found on the South Derbyshire website application no. DMPN/2025/0325.
No services are connected. A buyer should satisfy themselves as to the availability of services required. The vendor is willing to grant easements which might be required for ease of connecting services.
The property is sold Freehold with vacant possession.
The property is sold subject to and with the benefit of all rights of way, easements and wayleaves whether or not defined in these particulars. It is understood that the vendor wishes to retain a right of way over part of the land to access their retained land.
South Derbyshire District Council, Civic Offices, Civic Way, Swadlincote, DE11 0AH
Tel. 01283 22100
What3words///dating.noted.tuck
Strictly by appointment through the Ashbourne Office of Bagshaw's as sole agents on 01335 342201 or e-mail: ashbourne@bagshaws.com.
Bagshaws LLP have made every reasonable effort to ensure these details offer an accurate and fair description of the property. The particulars are produced in good faith, for guidance only and do not constitute or form an offer or part of the contract for sale. Bagshaws LLP and their employees are not authorised to give any warranties or representations in relation to the sale and give notice that all plans, measurements, distances, areas and any other details referred to are approximate and based on information available at the time of printing.
Although these particulars are thought to be materially correct their accuracy cannot be guaranteed and they do not form part of any contract.
Property data and search facilities supplied by www.vebra.com