11-13 North Street
Crowland
Lincolnshire
PE6 0EG
Nestled in the charming village of Cowbit, Spalding, this delightful detached chalet property at The Pastures offers a perfect blend of comfort and potential. Originally constructed in 2003 as a four-bedroom home, it has been thoughtfully reconfigured to meet the current owners' needs, yet it retains the flexibility to be easily reverted back to its original layout. The generous driveway at the front provides ample parking, for up to six cars complemented by a double garage for additional convenience.
A superbly presented detached chalet set on a generous plot with a double garage.
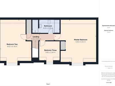
Upon entering, you are greeted by a spacious entrance hall that leads to a remarkable 25ft living room, seamlessly flowing into a sun lounge at the rear, creating an inviting space for relaxation and entertaining. The heart of the home is undoubtedly the T-shaped kitchen-diner, which boasts enough room for a table accommodating up to sixteen guests, making it ideal for family gatherings and social occasions. A separate utility room and an internal door to the double garage enhance the practicality of this well-designed home. Carpeted stairs lead to a spacious landing, where you will find three generously sized double bedrooms, each offering comfort and tranquillity. The family bathroom is conveniently located to serve these bedrooms, ensuring ease of access for all. Outside, the beautifully landscaped gardens at the rear bask in a sunny aspect, providing a serene outdoor retreat for gardening enthusiasts or those simply wishing to enjoy the fresh air. This property is a true gem, offering both space and versatility in a peaceful setting, making it an ideal choice for families or those seeking a tranquil lifestyle.
1.88 x 5.71 (6'2" x 18'8")
3.53 x 7.95 (11'6" x 26'0")
3.37 x 3.48 (11'0" x 11'5")
2.05 x 1.88 (6'8" x 6'2")
3.00 x 7.75 (9'10" x 25'5")
3.32 x 2.57 (10'10" x 8'5")
1.85 x 2.57 (6'0" x 8'5")
4.13 x 0.96 (13'6" x 3'1")
6.06 x 6.32 (19'10" x 20'8")
4.03 x 2.05 (13'2" x 6'8")
4.62 x 6.18 (15'1" x 20'3")
3.00 x 2.94 (9'10" x 9'7")
5.12 x 4.97 (16'9" x 16'3")
72/81
Construction: Standard
Accessibility / Adaptations: Lateral Living
Building safety: No
Known planning considerations: None
Flooded in the last 5 years: No
Sources of flooding: n/a
Flood defences: No
Coastal erosion: No
On a coalfield: No
Impacted by the effect of other mining activity: No
Conservation area: No
Lease restrictions: No
Listed building: No
Permitted development: No
Holiday home rental: No
Restrictive covenant: No
Business from property NOT allowed: No
Property subletting: No
Tree preservation order: No
Other: No
Right of way public: No
Right of way private: No
Registered easements: No
Shared driveway: No
Third party loft access: No
Third party drain access: No
Other: No
Parking: Double Garage, Garage Integral, Driveway Private
Solar Panels: No
Water: Mains
Electricity: Mains Supply
Sewerage: Domestic Small Sewage Treatment Plant
Heating: Gas Mains
Internet connection: Fixed Wireless
Internet Speed: up to 43Mbps
Mobile Coverage: EE - Great, O2 - Great, Three - Great, Vodafone - Great
Disclaimer: If you are considering purchasing this property as a Buy-to-Let investment, please be advised that certain areas may be subject to Selective Licensing schemes. Prospective purchasers are strongly advised to carry out their own due diligence to ensure compliance with any applicable licensing requirements, including any associated fees or obligations.
All information is provided without warranty.
The information contained is intended to help you decide whether the property is suitable for you. You should verify any answers which are important to you with your property lawyer or surveyor or ask for quotes from the appropriate trade experts: builder, plumber, electrician, damp, and timber expert.
Although these particulars are thought to be materially correct their accuracy cannot be guaranteed and they do not form part of any contract.
Property data and search facilities supplied by www.vebra.com