First Floor
15 The Nook
Anstey
Anstey
Leicestershire
LE7 7AZ
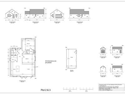
**LAST REMAINING PLOT**Being built by reputable local builder, Mensley Developments, this bespoke and generously sized detached two bedroom bungalow is located within an exclusive development of only three bungalows. Once completed this lovely Bungalow will benefit from an entrance hall, lounge/kitchen, utility, two bedrooms including an en-suite and a main bathroom. There will be off road parking and a garage as well as a garden. These plots are currently under construction and if further details are required please contact Amanda on 0116 236 7000. We also offer a free market valuation to plan the purchase. This lovely property will be finished to a very high level and be built to modern expectations and regulations including under floor heating, ASHP, Fibre installed as well as an integrated Kitchen.
Whitwick is a large village bordering Thringstone and Coalville to the north-east of the A511, the principal trunk road connecting the A42 dual carriageway at Ashby de la Zouch with the M1 motorway corridor at junction 22, providing further road links to Leicester and north to Loughborough, Nottingham and Derby. The village offers a range of local amenities and facilities including post office, village store, public houses, takeaway restaurants and the nearby leisure centre, together with excellent opportunities for walkers and country lovers with Grace Dieu and Cademan Woods close by. Whitwick is also well served for schooling, with three pre-schools, two junior schools along with a High School all within a few minutes walking distance of the property.
Although these particulars are thought to be materially correct their accuracy cannot be guaranteed and they do not form part of any contract.
Property data and search facilities supplied by www.vebra.com