9 Waterloo Street
Clifton
Bristol
Avon
BS8 4BT
Hollis Morgan – JULY LIVE ONLINE AUCTION – A Freehold BUILDING PLOT with PLANNING GRANTED to erect a DETACHED 3 BED HOUSE ( 1157 Sq FT ) with 2 x PARKING and GARDEN
*** SOLD @ JULY LIVE ONLINE AUCTION ***
GUIDE PRICE £100,000 +++
SOLD @ £153,000
ADDRESS | Land to Rear of 382 - 386, Southmead Road, Southmead, Bristol BS10 5LP
Lot Number 4
The Live Online Auction is on Wednesday 23rd July 2025 @ 17:30
Registration Deadline is on Monday 21st July 2025 @ 16:00
The Auction will be streamed LIVE ONLINE via the Hollis Morgan website & you can choose to bid by telephone, proxy or via your computer.
Registration is a simple online process – please visit the Hollis Morgan auction website and click “REGISTER TO BID”
On this occasion the vendors will NOT be considering pre auction offers.
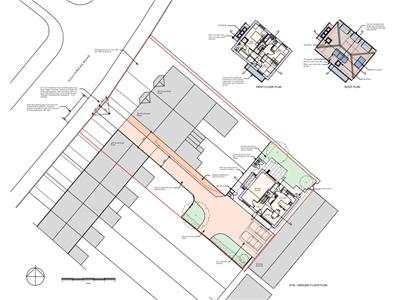
A Freehold building plot spanning the gardens to the rear of 382, 384 and 386 Southmead Road with vehicular access from Southmead Road and pedestrian access gate to the hospital grounds.
Sold with vacant possession.
Tenure - Freehold
BUILDING PLOT | PLANNING GRANTED
Planning has been granted to erect a detached 3 bedroom house with 2 reception rooms and 3 bathrooms with accommodation ( 1157 Sq Ft ) over 2 floors. Outside are two off street parking spaces and an enclosed garden to the side.
Completed value of £425,000 - £450,000.
The property is ideally suited for Southmead Hospital consultants or AirBnB for families of patients requiring tertiary care at Southmead Hospital.
Please refer to independent rental appraisal.
Interested parties should note the following;
Transport Regulation Order has been paid for road marking changes; moving of parking spaces etc (£7000 paid prior to planning approval )
Initial groundworks performed ( 52 tonnes of stone laid after excavation of topsoil )
Drop curbs done.
SAP calculations performed - able to demonstrate a 31.8% reduction in CO2 consumption relative to current building regulations with use of alternative energy sources included in the design.
Please refer to online legal pack.
The site is located in the heart of Southmead. Easy access is provided to Southmead Hospital, Airbus and Rolls Royce making this a great location with a strong rental demand including from Students at UWE. A wide range of local amenities are available on Southmead Road and Lidl supermarket are close by.
Victoria Marshall
Pearson Legal
0161785 3500
victoria.marshall@pearsonlegal.co.uk
www.pearsonlegal.co.uk
EXTENDED COMPLETION
Completion is set for 8 weeks or earlier subject to mutual consent.
We have been informed by our client’s solicitors that the legal pack for this lot is now complete.
Should any last minute addendums occur you will be automatically notified by email.
If the vendors have indicated they are willing to consider pre-auction offers, now is the time to submit your offer by completing the pre-auction offer form.
MATERIAL INFORMATION
Information including utilities, Electricity supply, Water supply, Sewerage, Heating, Broadband, Mobile signal / coverage, Parking, Building safety, Restrictions and rights, Rights and easements, Flood risk, Erosion risk, Coastal erosion risk, Planning permission for proposal for development, Property accessibility / adaptations, Coalfield or mining area all of which will be supplied within the legal pack that can be accessed for free via the Hollis Morgan website or via your EIG account.
VIEWINGS
Please submit a viewing request online and we will contact you to organise an appointment.
We will send you an email and text to confirm the appointment time and the full property address.
Viewings are supervised by a member of the Hollis Morgan Auction team who will meet you at the property.
ONLINE LEGAL PACKS
Digital Copies of the Online legal pack can be downloaded Free of Charge.
Please visit the Hollis Morgan Website and select the chosen lot from our Current Auction List.
Press the GREEN button to "Download Legal Packs" For the first visit you will be required to register simply with your email and a password.
Having set up your account you can download legal packs or if they are not yet available, they will automatically be sent to you when we receive them.
You will be automatically updated by email if any new information is added.
There will be a note added to the list to confirm AUCTION PACK NOW COMPLETE when no further information is due to be added.
*** STAY UPDATED *** By registering for the legal pack we can ensure you are kept updated on any changes to this Lot in the build up to the sale.
BUYER’S PREMIUM
Please be aware all purchasers are subject to a £1,500 + VAT (£1,800 inc VAT) buyer's premium which is ALWAYS payable upon exchange of contracts whether the sale is concluded before, during or after the auction date.
GUIDE PRICE
An indication of the seller's current minimum acceptable price at auction. The guide price or range of guide prices is given to assist consumers in deciding whether to pursue a purchase. It is usual, but not always the case, that a provisional reserve range is agreed between the seller and the auctioneer at the start of marketing. As the reserve is not fixed at this stage and can be adjusted by the seller at any time up to the day of the auction in the light of interest shown during the marketing period, a guide price is issued. This guide price can be shown in the form of a minimum and maximum price range within which an acceptable sale price (reserve) would fall, or as a single price figure within 10% of which the minimum acceptable price (reserve) would fall. A guide price is different to a reserve price (see separate definition). Both the guide price and the reserve price can be subject to change up to and including the day of the auction.
RESERVE PRICE
The seller's minimum acceptable price at auction and the figure below which the auctioneer cannot sell. The reserve price is not disclosed and remains confidential between the seller and the auctioneer. Both the guide price and the reserve price can be subject to change up to and including the day of the auction.
PRE AUCTION OFFERS
Some vendors are willing to consider offers prior to the auction.
Pre auction offers can ONLY be submitted by completing the online PRE AUCTION OFFER FORM
The form can be found on the Hollis Morgan website on the individual auction property listing.
Please note offers will not be considered until you have inspected the COMPLETE LEGAL PACK once it has been released.
There will be a note added to the list to confirm AUCTION PACK NOW COMPLETE when our client’s solicitor informs us no further information is due to be added.
In the event of an offer being accepted the property will only be removed from the online auction and viewings stopped once contracts have successfully EXCHANGED subject to the standard auction terms and payment of the buyer’s premium (£1,800 Inclusive of VAT) to Hollis Morgan.
Contracts can be exchanged via the solicitors or at the Hollis Morgan offices by appointment only.
REGISTRATION PROCESS
The registration process is extremely simple – visit the Hollis Morgan auction website and click on the “Register to Bid” button.
The “Register to Bid” button can be found on the auction home page or on the individual lot listings.
Please note this function is not available on Rightmove or Zoopla.
Stage 1 – Complete the Online Bidding Form
Stage 2 – Upload your certified ID
Stage 3 – Invitation to bid
Stage 4 – Pay your security deposit (£6,800)
You are now ready to bid – Good luck!
If your bid is successful, the balance of the deposit monies must be transferred to our client account within 24 hours of the auction sale.
If you are unsuccessful at the auction your holding deposit will be returned within 48 hours.
SURVEYS AND VALUATIONS
If you would like to arrange a survey or mortgage valuation of this Lot BEFORE the auction, please instruct your appointed surveyor to contact Hollis Morgan and we will arrange access for them to inspect the property. Please note that buyers CANNOT attend the surveys and the surveyors are responsible for collecting and returning keys to the Hollis Morgan offices in Clifton.
AUCTION FINANCE & BRIDGING LOANS
Some properties may require specialist auction finance- please contact Hollis Morgan for access to expert advice and whole of market rates from our independent brokers.
Hollis Morgan may receive introductory fees for this service from the broker.
AUCTION BUYER’S GUIDE VIDEO
We have short video guides for both buying and selling by Public Auction on the Hollis Morgan Website. If you have any further questions regarding the process, please don’t hesitate to contact Auction HQ.
2025 CHARITY OF THE YEAR
Hollis Morgan is supporting Uncle Pauls Chilli Charity empowering socially disadvantaged people with barriers to learning &/or disabilities based in Butcombe, North Somerset, our land overlooks the Mendip Hills and Blagdon lake. There are three main areas of focus at Uncle Paul’s Chilli Charity Education, Wellbeing and Social Prescribing – visit www.chillicharity.org.uk/ for more details or the Hollis Morgan Charity Page of our website.
AUCTION PROPERTY DETAILS DISCLAIMER
Hollis Morgan endeavour to make our sales details clear, accurate and reliable in line with the Consumer Protection from Unfair Trading Regulations 2008 but they should not be relied on as statements or representations of fact, and they do not constitute any part of an offer or contract. All Hollis Morgan references to planning, tenants, boundaries, potential development, tenure etc is to be superseded by the information contained in the legal pack. It should not be assumed that this property has all the necessary Planning, Building Regulation, or other consents. Any services, appliances and heating system(s) listed have not been checked or tested. Please note that in some instances the photographs may have been taken using a wide-angle lens. The seller does not make any representation or give any warranty in relation to the property, and we have no authority to do so on behalf of the seller.
Full details of the proposed scheme and drawings can be downloaded with the online legal pack.
Decision : GRANTED subject to condition(s)
Application no: 24/03115/F
Type of application: Full Planning
Site address: 382 & 384 & 386 Southmead Road, Bristol, BS10 5LP.
Description of development: Erection of a new dwelling with associated access and
landscaping works.
Applicant: Mr and Mrs Sims-Williams
Agent: Pure Town Planning
Committee/delegation date: 14.03.25
Date of Notice: 14.03.25
Although these particulars are thought to be materially correct their accuracy cannot be guaranteed and they do not form part of any contract.
Property data and search facilities supplied by www.vebra.com