28 High Street
Kinver
DY7 6HF
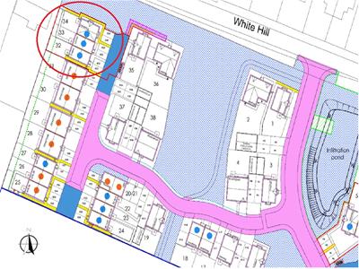
Plot 32- 1 of limited, 2 bedroom end of terrace shared ownership properties available at this prestigious new development on the outskirts of Kinver. Properties are sold off plan, on a first come, first served basis, subject to ‘full financial assessment sign off’. Therefore, to avoid missing out, don’t delay, apply today. EPC = B
To the front of the property is the hallway and the convenient downstairs WC. The hallway provides access to the kitchen/diner, this is a great space to relax with the family. To the rear of the home is the living area which benefits from patio doors opening out onto the garden, which is a perfect space for entertaining. The garden area comes turfed and fenced. Upstairs there are two good sized bedrooms and a family bathroom. The master bedroom also comes with an ensuite. This energy-efficient home has gas central heating, 2 off-road parking spaces and a car charging point.
The property benefits from a 10 year NHBC New build warranty.
This property is being offered for sale on the Shared Ownership Scheme, the property is marketed at a 40% share, with a full purchase price of £325,000. The shared ownership scheme enables purchasers to start with owning a share of between 10% and 75% of the property (depending on affordability) whilst paying a monthly rental and service charge on the remaining share. The monthly rental is charged at 2.75% and a full breakdown of the figures can be obtained from the agent.
PLEASE NOTE-
There is an 80% maximum restriction on future staircasing.
Please refer to the brochure section for further information and policies.
For more information, and how to apply, please contact the agent.
Location:
Kinver village is a popular destination for those wanting to enjoy a semi rural location but with the convenience of local amenities. The village provides schooling for all age ranges as well as a good selection of independent shops, pubs and eateries.
Tenure: Leasehold - 990 YEARS ONLY ON PLOTS, 32, 33 AND 34
Service charge: £35.69 PCM
Services: All mains services are connected Local Authority: South Staffordshire Council
ESTIMATED BUILD COMPLETION DATE - JULY 2025
Council Tax: Estimated band B-D
Some images (where used) are for illustration purposes only and may not show the exact property.
Although these particulars are thought to be materially correct their accuracy cannot be guaranteed and they do not form part of any contract.
Property data and search facilities supplied by www.vebra.com