111 Church Road
Burton Joyce
NG14 5DJ
Guide Price - £150,000 - £170,000 | Planning Permission Granted | Planning Reference: 2024/0549 Gedling Borough Council | Two Three Bedroom Properties | Popular Location | Close to Local Amenities | Currently a Block of Garages |
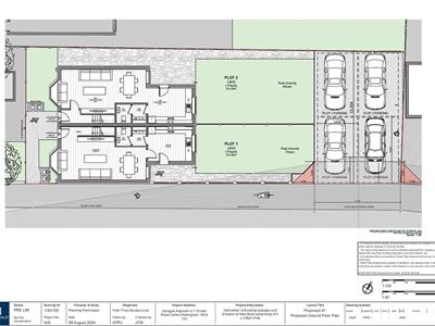
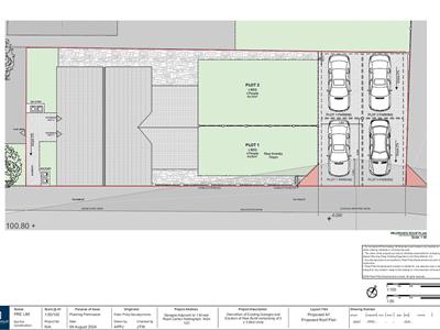
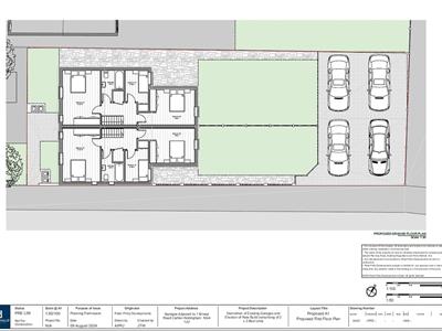
We are thrilled to present an outstanding development opportunity on Ernest Road, Carlton, Nottingham, NG4. This prime parcel of land comes with the significant advantage of having planning permission (Planning Reference: 2024/0549, Gedling Borough Council) already in place for the erection of two elegant three-bedroom residences.
Tailored for developers with an eye for potential, this plot is a canvas awaiting your signature. It’s a chance to craft from the ground up, perfect for those established in the field or looking to take the leap into property development. The versatility of the site allows for a range of visions, whether you intend to build bespoke family homes that exude character or a lucrative investment opportunity.
Nestled in the well-regarded locale of Carlton, the plot is ideally situated amidst an array of local amenities. Families will be drawn to the outstanding educational establishments nearby, while the assortment of shopping options ensures practicality and ease. Connectivity is key; this location boasts exceptional transport links, including roads and public transit that facilitate swift journeys to the heart of Nottingham and beyond.
Take advantage of this chance to make your mark in a locale that embodies the perfect blend of accessibility and lifestyle appeal. With solid prospects , this development opportunity on Ernest Road is not to be missed by those seeking to build not just homes, but futures.
Although these particulars are thought to be materially correct their accuracy cannot be guaranteed and they do not form part of any contract.
Property data and search facilities supplied by www.vebra.com