26 Kirkgate
Otley
West Yorkshire
LS21 3HJ
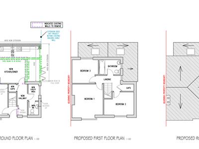
With planning permission already passed to extended the ground floor living space, this is a smartly presented semi detached house offering three double bedrooms which is truly worthy of an appointment to view. The planning allows for the undeveloped rear room to be be brought in to the accommodation whilst also extending this space to create a fabulous living and dining kitchen with bi-fold doors to the garden and then landscaping of the rear gardens themselves. The current house is well presented and includes an entrance hall to the sitting room and a kitchen on the ground floor. The first floor has a landing and three bedrooms, all good doubles. To arrange a viewing please contact Shankland Barraclough Estate Agents in Otley.
Otley is a beautiful Yorkshire market town having a population of approximately 15,000 people, set on the banks of the River Wharfe. Otley is a friendly and picturesque town with a rich commercial and community life. The town lies in attractive countryside within Mid-Wharfedale at the centre of the rural triangle between Leeds, Harrogate and Bradford. Immediately to the south of the town rises Otley Chevin, which gives magnificent views over Mid-Wharfedale, fantastic walks and cycling routes and in the past provided much of the stone from which the town centre was built. Highly regarded primary schools and the outstanding Prince Henry's Grammar School are found within the town itself, together with a lovely mix of popular branded stores a fantastic array of independently run shops, making Otley a very popular and pleasant town in which to live.
The accommodation with GAS FIRED CENTRAL HEATING, SEALED UNIT DOUBLE GLAZING and with approximate room sizes, comprises:
Via a glazed outer door to the front elevation, the staircase to the first floor and a door to the sitting room.
4.04m x 3.51m (13'3" x 11'6")Focal arched fireplace with an electric fire inset, a lovely bay window to the front elevation and a central heating radiator.
3.45m x 2.62m (11'4" x 8'7")Fitted modern kitchen units with worksurfaces over, a sink unit inset and tiled splash backs surrounding. Provision for an electric cooker, space and plumbing for a washer. Windows to the front and side elevations together with a door to the side patio.
5.56m x 2.82m (18'3" x 9'3")Currently undeveloped and with limited head space, planning has been passed in June 2023 (application number 23/02232/FU) to develop this area together with giving permission to extended it to the side and add bi-folding doors to create the most fabulous living and dining kitchen areas. Copies of the plans can be seen on Leeds City Councils web site or if you would like paper copies please do let us know and we can provide those for you.
Window to the side elevation.
3.63m x 3.35m (11'11" x 11')Central heating radiator and a bay window to the front elevation.
3.45m x 2.77m plus recess (11'4" x 9'1" plus receCentral heating radiator and a window to the front elevation.
3.23m x 2.69m (10'7" x 8'10")A good third double bedroom having a central heating radiator and a window to the rear elevation.
Fitted with a three piece suite in white comprising a panelled bath with a mixer shower tap and a screen over, a wash hand basin and a low level wc. Decorative wall panelling, a central heating radiator and a window to the side elevation.
To the front and side is a neat flagged patio area. As part of the development / extension, the plan was at the same time landscape the gardens to create more level areas and enclose for privacy.
Tenure: Freehold
All Mains Services Connected
Parking: On Street
Leeds City Council Tax Band C. For further details on Leeds Council Tax Charges please visit www.leeds.gov.uk or telephone them on 0113 2224404.
Independently checked information via Ofcom shows that Ultrafast Broadband up to 1800 Mbps download speed is available to this property. Mobile Phone coverage is available to the four main carriers. For further information please refer to: https://checker.ofcom.org.uk
We would be delighted to arrange a viewing for you on this property. To view, please contact Shankland Barraclough Estate Agents on (01943) 889010, e-mail us info@shanklandbarraclough.co.uk or call in to our office at 26 Kirkgate, Otley LS21 3HJ.
Monday to Friday 9am - 5.30pm
Saturdays 9am - 4pm
We are delighted to offer Whole of Market Mortgage advice through our relationship with T&C Independent Mortgage Advisors. To make an appointment please ring 01943 889010 and we will arrange for our advisor to help you source the most suitable mortgage for your circumstances.
The Initial consultation is free of charge and totally without obligation. A fee may then be payable if you choose to use their services.
Money Laundering, Terrorist Financing & Transfer of Funds Regulations 2017. To enable us to comply with the expanded Money Laundering Regulations we are required to obtain proof of how the property purchase is to be financed as well as identification from all prospective buyers. Buyers are asked to please assist with this so that there is no delay in agreeing a sale. The cost payable by the successful buyer(s) for this is £20 (inclusive of VAT) per named buyer and is paid to the firm that administers the money laundering ID checks, Movebutler. Please note the property will not be marked as sold subject to contract until appropriate identification has been provided and all AML checks are completed.
The extent of the property and its boundaries are subject to verification by inspection of the title deeds. The measurements in these particulars are approximate and have been provided for guidance purposes only. The fixtures, fittings and appliances have not been tested and therefore no guarantee can be given that they are in working order. The internal photographs used in these particulars are reproduced for general information and it cannot be inferred that any item is included in the sale.
Although these particulars are thought to be materially correct their accuracy cannot be guaranteed and they do not form part of any contract.
Property data and search facilities supplied by www.vebra.com