13 - 15 Albert Street
Mansfield
Nottinghamshire
NG18 1EA
XXX IDEAL OPPOURTINITY FOR DEVELOPERS XXX Land 63 - 65, Phoenix Street Sutton-In-Ashfield, NG17 4HL
Nestled in the heart of Sutton-In-Ashfield, this freehold parcel of land presents an exceptional opportunity for residential development. Ideally situated, the plot is conveniently located near both Sutton and Mansfield town centres, ensuring easy access to a variety of amenities, shops, and services.
The land is broadly square in shape, providing a versatile canvas for your building aspirations. With access directly off Phoenix Street, the site benefits from good transport links, making it an attractive proposition for potential homeowners or investors alike.
Moreover, the proximity to Kings Mill Hospital, just a short walk away, adds to the appeal of this location, making it ideal for families and professionals seeking a community-oriented environment.
This building plot is a rare find in a desirable area, offering the chance to create a bespoke residential development in a thriving part of Nottinghamshire. Whether you are looking to build your dream home or invest in a promising project, this land on Phoenix Street is a remarkable opportunity not to be missed.
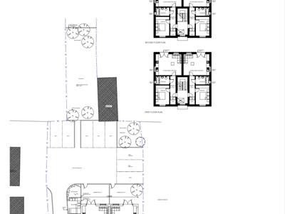
PREVIOUS FULL PLANNING PERMISSION NOW LAPSED
6 x 1 bedroom apartment block
Off street parking for 8 x cars
Ground floor flats benefit from self-contained gardens
Further green space/gardens proposed at rear of site
Ashfield District Council Planning Ref: V/2021/0240
Although these particulars are thought to be materially correct their accuracy cannot be guaranteed and they do not form part of any contract.
Property data and search facilities supplied by www.vebra.com