Fax: 01834 844730
Tudor Square
Tenby
Pembrokeshire
SA70 7AJ
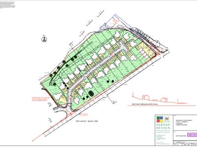
An exciting opportunity to purchase a plot in Llanmiloe with full planning permission. The plot is approximately 642 square meters and boasts an enviable location within Llanmiloe. The planning permission is for a detached house with a lovely L shape kitchen/diner/living room, a utility room study and downstairs WC on the ground floor. The first floor boasts the master bedroom with an en-suite, three further double bedrooms and the main family bathroom. The property benefits from a garage to the front of the property.
The plot can either be a great investment for someone looking to build the property for re-sale or an opportunity to build your own dream home in a popular location.
AGENT NOTE- The plot has mains drainage connections, with electricity and water available in the footpath adjacent.
Situated on the edge of the Carmarthenshire, Pembrokeshire border in West Wales, Pendine boasts a 7 mile beach stretching from Gilmore Point to Laugharne Sands where Malcolm Campbell and J.G. Parry-Thomas set the world land speed record five times between 1924 and 1927. The beach stretches for seven miles, and is well worth the visit.
GENERAL INFORMATION
VIEWING: By appointment only via the Agents.
TENURE: We are advised Freehold
SERVICES: We have not checked or tested any of the services or appliances at the property.
TAX: Band NA
FACEBOOK & TWITTER
Be sure to follow us on Twitter: @ WWProps
https://www.facebook.com/westwalesproperties/
Any floorplans provided are included as a service to our customers and are intended as a GUIDE TO LAYOUT only. Dimensions are approximate. NOT TO SCALE.
ADD/REM/11/23
TAKEONOK/LLE/01/11/23
Although these particulars are thought to be materially correct their accuracy cannot be guaranteed and they do not form part of any contract.
Property data and search facilities supplied by www.vebra.com