5 High Street
Cardigan
Ceredigion
SA43 1HJ
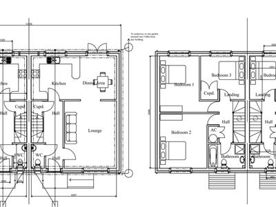
An exciting opportunity to purchase a building plot with consent 2 No. semi-detached dwellings on Land adj to the former Boncath Inn, Boncath, Cardigan, SA73 0JN Under Planning Reference 24/0571/PA.
Granted under application number: 24/0571/PA (20 Feb 2025) for 2 No. semi-detached dwellings - Land adj to the Boncath Inn, Boncath, Cardigan, SA73 0JN.
Pembrokeshire County Council
County Hall
Haverfordwest
Pembrokeshire
SA61 1TP
Hall, wc, living room, kitchen/diner, three bedrooms and a family bathroom. Parking and gardens.
Although these particulars are thought to be materially correct their accuracy cannot be guaranteed and they do not form part of any contract.
Property data and search facilities supplied by www.vebra.com