1/3 South Street
Bo'ness,
West Lothian
EH51 0EA
POTENTIAL DEVELOPMENT OPPORTUNITY
Fixed Price £200 000
The property boasts an impressive standard of presentation and generous proportions, providing endless scope for development or adaptation. Viewing is highly recommended to truly appreciate the size, quality, and versatility that this unique opportunity has to offer.
EPC RATING B
A rare opportunity to purchase a detached commercial retail building within Falkirk
This commercial building could be an excellent development opportunity for any interested party. With the correct planning permission, the new owner could convert the building to a residential building. The building could be converted into a substantially large bungalow or two smaller bungalows. It is located in the popular residential area of Easton Drive in Shieldhill within a mix of modern detached villas.
The commercial Unit has the added benefit of rate relief . The unit benefits from rear parking bay for two vehicles, and front external storage area. The unit also benefits from a parking layby to the front for additional staff or customer parking.
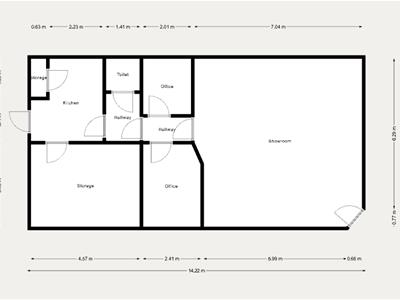
This retail unit has been finished internally to a high standard and is currently fitted out as a bathroom showroom. The showroom benefits from gas central heating, modern WC, modern kitchen,staff room, and offices. The showroom also benefits from a large store room at the rear, including shelfing and steel security door for delivery’s. The property is fully carpeted with modern finishings. The showroom was newly renovated in 2022 The showroom is located on a main road with a large frontage for passing trade.
The building has been fully renovated in 2020, The building was taken back to brick and fully renovated offering a walk in key ready condition. It has the benefit of a fitted kitchen, new gas combi heating system, Fully Rewired with new Fuse board, Modern Wc, fitted kitchen, 2x offices and store room. Parking and external storage area. The Large loft area is also floored for additional storage, with a loft ladder as access
The Building was previously a convenience store before it was converted into its current use as a bathroom showroom
Parking was added to the left side of the building along with a storage area at the front right of the building in 2018 by the current owner. The parking area is large enough at the side of the building if the property was to be redeveloped to a bungalow that it could be halved to incorporate a garden with enough room remaining for car parking spaces The loft within the building has ample head height to incorporate an loft conversion with relevant planning consent approval to add additional living space if required.
Location- Shieldhill is ideally placed for access to both primary and secondary schools and has a good range of local village amenities. The vibrant town of Falkirk is a short drive away and has excellent transport facilities with readily accessible motorway links to Edinburgh, Glasgow and beyond and is served by two main line railway stations offering further superb transport links. Falkirk is also home to the popular Helix Park and Kelpies, the Historic Callendar House and Park, and the famous Falkirk Wheel, a rotating boat lift connecting the Forth and Clyde Canal with the Union Canal.
To arrange a viewing or for further details please call 01501 733200 or email property@sneddons.com.
Although these particulars are thought to be materially correct their accuracy cannot be guaranteed and they do not form part of any contract.
Property data and search facilities supplied by www.vebra.com