Ambellia, Main Road
Northiam
TN31 6LP
Rush Witt & Wilson are delighted to offer a parcel of land located in the heart of Northiam Village complete with planning permissions to erect a newly constructed 753sqft two bedroom detached dwelling complete with off road parking and private garden - planning ref RR/2024/1234/P.
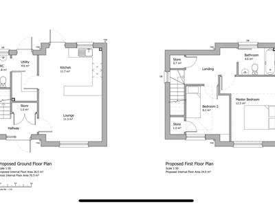
Accommodation comprises a spacious entrance hall with built in storage, living room, kitchen / breakfast room with external door to the rear, separate utility room and WC. To the first floor will provide both a generous master bedroom, further single and main family bathroom suite. Externally the property will provide a private rear garden and off road parking for two vehicles over a private driveway.
Northiam Village benefits from a choice of excellent walking routes, two convenience stores, award winning Doctor's surgery, Opticians, Dentist surgery, popular Bakery and Hardware store. Further High Street Shopping is available and Tenterden and Rye just a short Drive away.
Although these particulars are thought to be materially correct their accuracy cannot be guaranteed and they do not form part of any contract.
Property data and search facilities supplied by www.vebra.com