9 Highstreet
Rushden
NN10 9JR
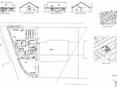
Charles Orlebar presents - A site with lapsed planning permission (that can/will be resubmitted) for a three bedroom detached bungalow on this quiet road within easy walking distance of the town centre. For more information, please call 01933 313600.
Although these particulars are thought to be materially correct their accuracy cannot be guaranteed and they do not form part of any contract.
Property data and search facilities supplied by www.vebra.com