3a Bishopthorpe Road
York
YO23 1NA
INVESTMENT OPPORTUNITY! CURRENTLY SPLIT INTO TWO INDIVIDUAL PROPERTIES! Nestled in the charming St. Marys Crescent, this delightful 5 bed house presents a fabulous investment opportunity for discerning buyers. Currently configured as two individual properties operating as successful holiday lets but could easily be configured into one with its versatile layout. The property could also be adapted back into a lovely family home, making it an ideal choice for those seeking a comfortable living space in a picturesque setting. Situated within walking distance to the beautiful fishing town of Whitby, residents will relish the convenience of local amenities, quaint shops, and the stunning coastline. The superb views of Whitby from the property further enhance its appeal, offering a picturesque backdrop that changes with the seasons. This house is not just a property; it is a canvas for your imagination, ready to be transformed into a home that reflects your personal style. With its prime location and potential for adaptation, this is an opportunity not to be missed. Embrace the charm of Whitby and make this house your own. An internal viewing is strongly recommended.
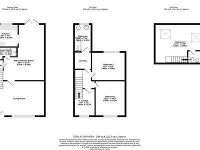
5.82m x 5.28m (19'1" x 17'4")
2.44 x 1.31 (8'0" x 4'3" )
2.57m x 2.36m (8'5" x 7'9")
2.87m x 1.80m (9'5" x 5'11")
3.49 x 2.95 (11'5" x 9'8" )
3.63m x 3.12m (11'11" x 10'3" )
2.83 x 2.17 (9'3" x 7'1" )
5.28m x 4.04m (17'4" x 13'3" )
4.57 x 2.90 (14'11" x 9'6")
3.06 x 2.90 (10'0" x 9'6" )
4.81 x 2.90 (15'9" x 9'6" )
1.50m x 1.27m (4'11" x 4'2")
Although these particulars are thought to be materially correct their accuracy cannot be guaranteed and they do not form part of any contract.
Property data and search facilities supplied by www.vebra.com