38 Townhead Street
Cumnock
East Ayrshire
KA18 1LD
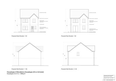
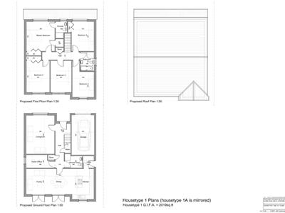
Introducing an exceptional opportunity to invest in a large plot of land situated in the sought-after Glebe Road, Beith KA15. This prime location boasts planning permission for an impressive development comprising of 5x 5 Bedroom Detached Villas and 2X 3 Bedroom Detached Villas. There is an opportunity to change the plans to suit the purchaser.
Introducing an exceptional opportunity to invest in a large plot of land with planning approved, situated in the sought-after Glebe Road, Beith KA15. This prime location boasts planning permission for an impressive development comprising of 5x 5 Bedroom Detached Villas and 4x 3 Bedroom Detached Villas.
Nestled within the charming Garnock Valley in North Ayrshire, the ever-popular town of Beith offers a delightful blend of tranquility and convenience. With excellent transport links to Glasgow, which can be reached within a mere 35-minute drive, this location effortlessly combines the best of both worlds.
This location presents an array of amenities just a stone's throw away. Families will appreciate the proximity to well-regarded schools, ensuring an excellent education for their children. For your everyday needs, a variety of shops are within easy reach, making errands a breeze. Nature enthusiasts will relish the nearby parks, providing serene green spaces to unwind and enjoy leisurely strolls. Additionally, an assortment of bars and restaurants are at your disposal, perfect for socializing with friends.
This exceptional development opportunity is not only a wise investment but also promises to attract a high level of interest upon completion. With the potential to create a stunning collection of homes, this project offers endless possibilities for homeowners and investors alike.
Please see Floorplans for further details. Updated plan overcomes connection to culvert.
Don't miss out on the chance to make your mark in the thriving town of Beith. Contact Oakhouse Premier Sales & Lets today for further information.
Although these particulars are thought to be materially correct their accuracy cannot be guaranteed and they do not form part of any contract.
Property data and search facilities supplied by www.vebra.com