34 Cadzow Street
Hamilton
South Lanarkshire
ML3 6DG
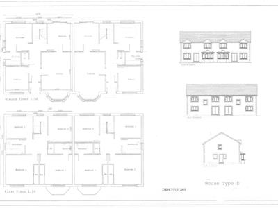
An excellent opportunity to acquire a development site with planning permission having been granted for 21 houses made up of a mixture of 4 bedroomed detached villas and 3 and 4 bedroomed semi-detached homes.
The site at Bellfield Road set on the periphery of Coalburn village and is within close proximity to the M74 motorway.
Full details can be found on the South Lanarkshire Planning portal along with the completed section 75 with planning reference P/19/0884.
To register your interest or arrange a site visit then please contact our Hamilton office on 01698 444 333.
Coalburn is a small village set on the outskirts of Lesmahagow. The village offers several local amenities including a primary school, shop and pub as well as Coalburn Leisure centre, whilst Lesmahagow offers a wider range of amenities including a Tesco Superstore, fuel stations, post office and a wide variety of additional professional services. There are also two primary schools and the recently constructed Lesmahagow High School which hosts the Lesmahagow Sports Facility, which is a multipurpose sports and leisure centre.
An excellent opportunity to acquire a development site with planning permission having been granted for 21 houses made up of a mixture of 4 bedroomed detached villas and 3 and 4 bedroomed semi-detached homes.
Although these particulars are thought to be materially correct their accuracy cannot be guaranteed and they do not form part of any contract.
Property data and search facilities supplied by www.vebra.com