39 Havelock Road
Hastings
East Sussex
TN34 1BE
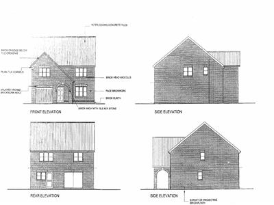
PCM are pleased to offer an opportunity to purchase a BUILDING PLOT with permission for the erection of 4 BEDROOM DETACHED FAMILY House with integral garage. This plot is located in a particularly sought-after area of St Leonards. Further details can be found on Hastings Planning website under reference HS/FA/05/00655
Please call the owners agents now on 01424 839111 to avoid disappointment.
Although these particulars are thought to be materially correct their accuracy cannot be guaranteed and they do not form part of any contract.
Property data and search facilities supplied by www.vebra.com