Humbleton Park, West Auckland Road
Darlington,
DL2 2YJ
An exciting development opportunity to acquire a former public house with residential first floor accommodation.
LOCATION
Crook is a small market town located on the A690 west of Durham City, and north of Bishop Auckland. The town centre comprises of a selection of independent retailers and several high street chains. There are primary schools within Crook, and secondary schools located in Bishop Auckland, Willington and Wolsingham. The property is well situated for travel to Durham City, The Dales and slightly further to Newcastle or Corbridge.
what3words ///dislodge.cupcake.abandons
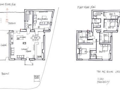
DESCRIPTION
The Mill offers an exciting renovation project. The property is currently a mixed use building comprising of a public house to the ground floor space, with ladies and gents WC facilities, storage room and stairs leading to the first floor residential accommodation. The first floor comprised a kitchen, living room, three bedrooms and a bathroom with a terrace from the landing providing some outside space. The current vendors have looked into the possibility of creating a holiday let with spacious reception rooms and kitchen to the ground floor and five bedrooms, three bathrooms and a separate WC to the first floor. The plans for this currently do involve part of the ground floor of the building being demolished which in turn would create a pleasant and private courtyard. The current and proposed floor plans are included within these particulars.
SERVICES
The property is served by mains water electricity and drainage, and has gas central heating.
COUNCIL TAX BAND
Durham County Council Tax Band A
ENERGY PERFORMANCE CERTIFICATE
The property has a Commercial EPC rating D 80.
MATERIAL INFORMATION
It is understood that the property has access to a good broadband connection and has good mobile phone signal in this area for EE and O2 and more limited signal for Vodafone and Three.
RATING ASSESSMENT
The Valuations Office Agency’s current rating assessment for the property is £7500 effective from 1st April 2023. The Small Business Rate for the year 2024/2025 is 49.9 pence in the pound.
COSTS
Each party is to bear their own costs.
MONEY LAUNDERING
Prospective buyers should be aware that in the event that they are successful they will be required to provide documents in relation to the current Money Laundering and Terrorist Financing Regulations. The extent of the required documentation will be confirmed to the purchaser(s) after acceptance of an offer.
TENURE
We are informed by the current vendors that the property is held freehold.
METHOD OF SALE
The property is offered for sale as a whole by private treaty.
VIEWINGS
Please contact Vickers & Barrass Darlington office on 01325 728084 to arrange a viewing, which are strictly by appointment only.
LOCAL AUTHORITY
Durham County Council
www.durham.gov.uk
03000 26 0000
NOTES
Particulars prepared – December 2024
Photographs taken – December 2024
PARTICULAR NOTES
The particulars are set out as a general outline for the guidance of intending purchasers or lessees and do not constitute, all or part of an offer or contract; all descriptions, dimensions, areas, references to condition and necessary consents for use and occupation and other details are given as a guide only and without responsibility. Any intending purchasers or lessees should not rely on them as statements or representations of fact but must satisfy themselves, by inspection or otherwise, as to their accuracy.
No employee of Vickers & Barrass, Chartered Surveyors has the authority to make or give any representation or warranty whatever in relation to this property nor is any such representation or warranty given by the Vendors or the Lessors of this property.
Any offer for this property will be taken as an admission by the intending purchaser that they have relied solely upon their own personally verified information, inspection, and enquiries.
The photographs show only certain parts of the property. It should not be assumed that the property remains as displayed in the photographs.
Where any reference is made to planning permissions or potential uses, such information is given by Vickers & Barrass, Chartered Surveyors in good faith. Prospective purchasers should make their own enquiries with the Local Planning authority into such matters.
The Vendors reserve the right to amalgamate, withdraw to generally amend the particulars or method of sale.
The property is sold subject to reserve(s).Vickers & Barrass, Chartered Surveyors reserve the right to sell privately without imposing a closing date and do not bind themselves to accept the highest or any offer.
The particulars have been prepared in accordance with the Business Protection from Misleading Marketing Regulations to give a fair overall view of the property.
Although these particulars are thought to be materially correct their accuracy cannot be guaranteed and they do not form part of any contract.
Property data and search facilities supplied by www.vebra.com