226-230 South Coast Road
Peacehaven
East Sussex
BN10 8JR
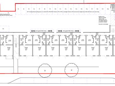
A superb opportunity to acquire the Freehold of this building with Prior Approval Approved for 9 Third Floor Apartments.
Situated in this unrivalled position on this bustling street in Saltdean, with a good range of mixed residential and commercial buildings. The apartments are within easy reach of the local schools, bus routes to Brighton and Saltdean beach and other amenities.
The property is currently arranged as 30 residential flats which all have long leases. All apartments are on 999 year leases which were issued in 1968 and have a combined annual ground rent commanding £1642.
The Prior Approval permission includes creating a third floor, where there will be 1 x Two Bedroom Apartment, 4 x One Bedroom Apartment and 4 x Studio Apartments.
Please call for further information
Although these particulars are thought to be materially correct their accuracy cannot be guaranteed and they do not form part of any contract.
Property data and search facilities supplied by www.vebra.com