*** WITH PLANNING *** Due to a business relocation, the premises will be sold with vacant possession. This excellent business development opportunity in BARNSLEY TOWN CENTRE is one not to be missed.
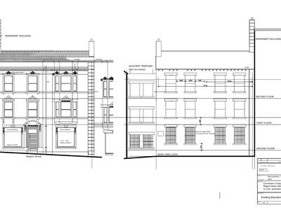
Four storey listed building with basement, having planning consent for both the first and second floor for four self contained one bedroom apartments. With the ground floor potentially used as two offices.
The prominent position on Regent Street is within the immediate vicinity of a range of retail and leisure facilities and close proximity to transport links.
Barnsley town centre is a vibrant market town in South Yorkshire with a strong community spirit, great architecture, and a variety of shopping and entertainment options. The town centre has many places to shop, including high street stores, boutiques, and market stalls. The primary shopping area is on Cheapside and Queen Street, and includes the Alhambra Shopping Centre and The Glass Works.
The town centre has numerous entertainment venues, including bars, nightclubs, restaurants, and The Civic, an arts centre and culture hub. The Civic hosts a variety of events, including theatre, dance, music, comedy, family events, cinema, and exhibitions.
Application Number: 2024/0114
Change of use for both the first and second floors from offices, to four apartments and two offices to the ground floor.
Further details can be viewed on https://www.barnsley.gov.uk/services/planning-and-buildings.
Please note this property comes under Section 21 of the Estate Agents Act in that it is owned by a member of our staff.
Presently used as office space
Housing a kitchen area with base unit and stainless steel sink above. Toilet area with two cubicles. There is also a boiler room with storage area.
Currently being used as office space
Currently being used as office space
Approximately 354 sq m
The property is Freehold.
Interested parties are recommended to make their own enquiries prior to entering into any commitment.
Although these particulars are thought to be materially correct their accuracy cannot be guaranteed and they do not form part of any contract.
Property data and search facilities supplied by www.vebra.com