11, Main Road
Hockley
Essex
SS5 4QY
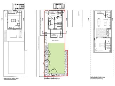
Bear Estate Agents are delighted to offer for sale this unique opportunity to purchase your very own plot of land to build a stunning character three bedroom cottage with sea views (plans passed). The property boasts a basement level consisting of an open plan kitchen/diner, lounge and utility room, leading onto a large master suite which also benefits from its own ensuite and office, there is further space for a dressing room.
To the ground floor there is a spacious entrance hall with storage and access to the first floor, doors too: storage, bedroom two, bedroom three and main bathroom.
The first floor encompasses a large open plan reception room and stunning sea views.
Externally, Clifton mews includes a good size south facing rear garden and parking to the front.
Conveniently located within walking distance to local city amenities and award-winning beaches, this property truly offers the best of both worlds. Whether you're looking to build your forever home or a holiday retreat, this development site is sure to exceed your expectations.
Don't miss out on this incredible opportunity to create a bespoke home in a sought-after location. Contact us today to turn your property dreams into reality at Clifton Mews!
The vendor will also consider a change in the plans and offer a subject to planning sale. Please enquire within.
20/02041/FUL - Erect a two storey dwelling house with basement level and sunken terrace, form hard and soft landscaping, bin store and cycle store and fell existing trees on west boundary and plant four new replacement trees
The outstanding amount of CIL payable that this demand notice relates to is £6,188.81 including any surcharges (apportioned as relevant).
The vendors has informed us the adjacent properties both benefit from power and water. All interested parties are advised to make their own enquiries.
The site occupies a prominent location in the Southend City, Essex, ideal for a families and commuters. The site is offered on a vacant possession, with planning permission approved.
The Property is held as FREEHOLD.
For comparable evidence, please enquire within.
Clifftown has a number of historic mews associated with larger grander terraces and these are an important part of the character of the conservation area as they highlight the hierarchy and status of the houses within the original planned estate. Situated amongst the Clifftown conservation area and just a stones throw to Southend Sea Front and Town Centre.
All sites are subject to a buyers discretion and change subject to council approval, with further development potential STPP.
The vendor is seeking offers. subject to contract and exclusive of VAT for the benefit of the freehold interest in the total site and current properties.
Viewings are strictly by appointment and to be accompanied by the agent.
Whilst every care is taken to ensure that these particulars are up to date including GDV's and figures calculated, buyers are advised to make their own enquires and research.
A full break down of expenses, fees and outgoings involved will vary dependant on the buyer circumstances and all calculations should be carried out and confirmed by interested parties as part of their Due-Diligence process.
Previous planning permission was approved for a detached 2 Bedroom dwelling, further details can be found under planning reference 16/00221/FUL on the Southend Borough Council planning portal. The plans were approved prior to further land being purchased and added to the title with further plans approved for a 3 bedroom Detached dwelling.
Although these particulars are thought to be materially correct their accuracy cannot be guaranteed and they do not form part of any contract.
Property data and search facilities supplied by www.vebra.com