53 King Street
Whalley
Lancashire
BB7 9SP
DEVELOPMENT SITE WITH PLANNING CONSENT FOR 4 EXECUTIVE HOMES.
**Plot 1**
Residential development site, extending to 1.1 acres with planning consent to create four detached executive homes. The property lies in an elevated idyllic rural location and forms part of a small cluster of other similar residences. It is surrounded by open countryside and lies 25 miles to the north of Manchester and 12.5 miles to the south of Preston, with the market town of Chorley only 3.4 miles away.
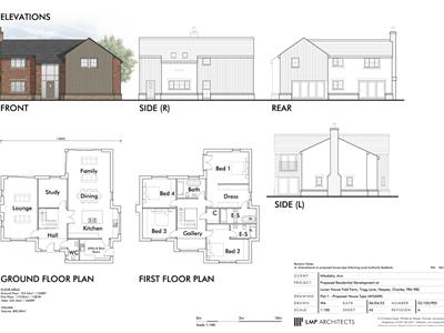
Planning Application 23/00038
Proposed Residential Development (four new units).
Development site area: 1.16 acres (0.47ha).
Ground floor: Open-plan kitchen / family room and utility, study, lounge, hallway and WC –1,328 sq.ft. (123.34 sq.m.)
First floor: Principal bedroom with dressing room and en suite, bedroom 2 with en suite, bedrooms 3 and 4 and family bathroom – 1,281 sq.ft. (119.02 sq.m.)
Total floor area: 2,609 sq.ft. (242.36 sq.m) plus detached garage
Although these particulars are thought to be materially correct their accuracy cannot be guaranteed and they do not form part of any contract.
Property data and search facilities supplied by www.vebra.com