70 High Street
Lanark
ML11 7ES
An exciting development opportunity to purchase a substantial building plot (0.49 acre) on the periphery of Lanark with an open outlook and views to the Mouse Valley. This former double residential plot benefits from quick access to Lanark town centre whilst retaining a rural feel as well as no adjoining residential neighbours.
Services are conveniently placed close by and the plot will be serviced by the BT full fibre network.
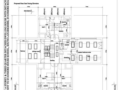
Planning permission has been granted to build a 4456sqft, storey & three-quarter detached villa in a tranquil setting with views to the adjacent woodland and farmland. These plans may be amended to suit individual requirements. The full site extends to circa 1950 sq m and the proposed property will have generous and private gardens with a double detached garage with flexible accommodation above. This double plot was marketed historically as two separate plots and benefitted from outline planning for two properties on the site.
Additional details can be found on the following link :-
https://publicaccess.southlanarkshire.gov.uk/online-applications/applicationDetails.do?activeTab=summary&keyVal=RRZ8BIOPHKT00
This lovely location is found only a short drive away from Lanark town centre and its amenities. Lanark has a great Main Street and offers a wide range of shopping facilities, bars and restaurants whilst the nearby Lanark Falls visitor centre provides historical and cultural places of interest. Commuting to and from the town can be by either vehicle or public transport with excellent road and rail links servicing the area. Lanark also has several well regarded schools which cater for all denominations. There are excellent sports facilities within the area including golf courses, a swimming and leisure complex, parks, fishing clubs and picturesque walks . The surrounding towns include Biggar, Broughton and Carluke which offer additional shops, restaurants, coffee shops, garden centres and similar village settings to Lanark.
Although these particulars are thought to be materially correct their accuracy cannot be guaranteed and they do not form part of any contract.
Property data and search facilities supplied by www.vebra.com