Fax: +44 (0)1922 459924
Email: enquiries@chrisfoster.co.uk
6-8 Beacon Buildings, Leighswood Road
Aldridge
West Midlands
WS9 8AA
DEVELOPMENT OPPORTUNITY
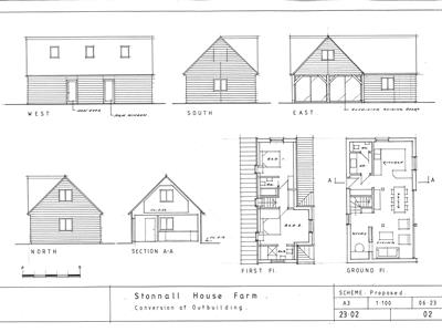
An excellent opportunity has arisen to acquire an existing outbuilding with full planning permission to convert to a 2 bedroom detached dwelling in an outstanding rural location close to green belt countryside yet within easy reach of local amenities.
Planning permission has been granted as follows:
LICHFIELD PLANNING REFERENCE: 23/00849/COU
Chris Foster & Daughter are delighted to offer this exciting opportunity for the chance to acquire an existing outbuilding with full planning permission to convert to a detached 2 bedroom dwelling extending to approx 130 sq.m with garden and off road parking in this highly sought after rural location close to green belt countryside yet remaining within easy reach of local amenities.
Full planning permission is granted via Lichfield District Council - Reference 23/00849/COU
Mill Lane, Lower Stonnall is approximately 1 mile from Stonnall village centre which provides a range of local shops, highly regarded primary school and St Peter's Church whilst main centre shopping is available at Lichfield, Sutton Coldfield and Walsall and a further range of good schools are easily accessible including Friary High School and King Edwards Lichfield, Shire Oak Academy and St Francis of Assisi Catholic Technical College at Aldridge.
The area is extremely accessible to all main centres of the West Midlands Conurbation with the A5 Trunk and M6 Toll Roads close to hand leading to the M6, M5, M42 and M54.
The area is well served for leisure facilities with Oak Park Active Living Centre in Walsall Wood, cricket and running clubs at the 'Stick and Wicket' behind the church at The Green, Aldridge and Druids Heath Golf Club off Stonnall Road, while Stonnall village enjoys a range of community activities.
Planning permission is granted to create the following accommodation: open plan living/dining/kitchen and study area, utility, guest cloakroom, 2 first floor bedrooms and bathroom, whilst outside offers a generous garden area and off road parking.
We understand the property is Freehold with vacant possession upon completion.
SERVICES Mains services will require connection (currently no mains gas in the location). Drainage is by way of a small septic tank. There is an option for air source or ground source energy systems to be installed.
Although these particulars are thought to be materially correct their accuracy cannot be guaranteed and they do not form part of any contract.
Property data and search facilities supplied by www.vebra.com