Fax: 020 8569 3495
254 Kingshill Avenue
Hayes
Middlesex
UB4 8BZ
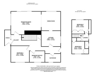
3/4 BEDROOM DETACHED CHALET BUNGALOW/ GREAT LOCATION: Charrison Davis are delighted to bring to the market this real opportunity to acquire one of Harlington's most sought after properties. Currently a spacious family home the property also has great development potential STPP. Located within walking distance of Harlington village centre with its shopping facilities, William Byrd school and bus routes to the Hayes and Harlington Station (Crossrail Link), Bath Road and London Heathrow Airport. The M4/M25 networks are also only a short drive
away. The detached property currently features a spacious lounge and dining area, 3 good size bedrooms, additional bedroom/study room, family bathroom, Kitchen, separate W.C. and large spacious front and rear gardens. The property also benefits from double glazed windows, gas central heating, low maintenance garden and off street parking for 2 vehicles.
Although these particulars are thought to be materially correct their accuracy cannot be guaranteed and they do not form part of any contract.
Property data and search facilities supplied by www.vebra.com